Property Description
*** Guide Price £475,000 - £500,000 ***
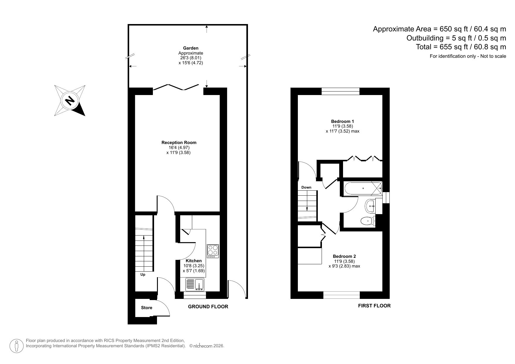
Well-presented 1990's built end of terrace house located moments from Sydenham high street and station.
Benefitting from recently installed double glazing, south facing landscaped garden, allocated parking space, two double bedrooms, 16' lounge and modern kitchen and bathroom.
Within walking distance of Crystal Palace Park and the award winning Mayow Park
- End of terrace
- Two double bedrooms
- South facing landscaped garden
- 16' Lounge with bi fold doors
- Allocated parking space
- Potential to Convert Loft (STPP)
- Modern bathroom and kitchen
- Moments From Sydenham Station and high street
- Within walking distance of Crystal Palace Park and the award winning Mayow Park
Rooms
Entrance HallPart opaque double glazed UPVC entrance door, radiator, understairs storage cupboard, laminate flooring, coved and textured ceiling.
LoungeDouble glazed bi fold doors to garden, laminate flooring, picture rail, coved and textured ceiling.
KitchenDouble glazed window to front, range of fitted wall and base units with work surface over, one bowl stainless steel sink unit with mixer tap, integrated fridge/freezer and washing machine, oven, gas hob and extractor fan to remain, cupboard housing wall mounted boiler, tiled splash back, laminate flooring, coved and textured ceiling.
LandingStorage cupboard, carpet, access to loft, coved and textured ceiling.
Bedroom OneDouble glazed window to rear, radiator, full height fitted wardrobe, carpet, coved and textured ceiling.
Bedroom TwoDouble glazed window to front, radiator, carpet, coved and textured ceiling.
BathroomOpaque double glazed window to side, heated towel rail, three piece bathroom suite comprising of: panelled bath with mixer tap and shower attachment, inset wash hand basin with mixer tap and vanity unit under, low level wc, tiled flooring, tiled walls, coved and textured ceiling.
Rear GardenIndian sand stone patio, raised lawn area, side access, outside light.
ParkingAllocated parking space.
