Property Description
*** Guide Price £575,000-£600,000 ***
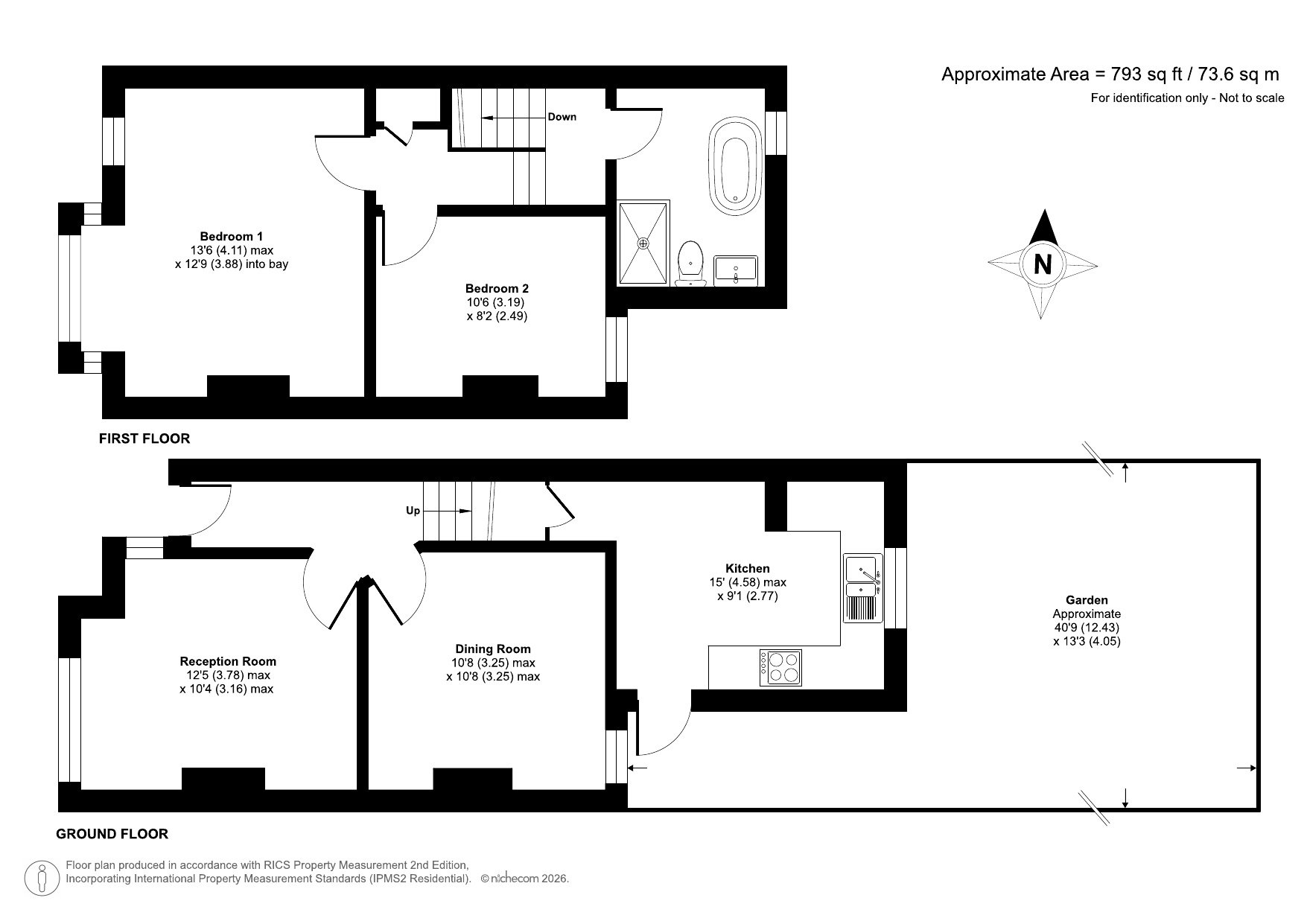
Extended and immaculately presented terraced family home which must be viewed to fully appreciate the works that have been carried out.
Benefitting from two reception rooms, extended kitchen, two double bedrooms, modern first floor bathroom and landscaped garden.
Well located for Sydenham high street, Sydenham, Lower Sydenham and Penge East stations. Within walking distance of the award winning Mayow Park and Alexandra recreation ground.
- Attractive period terraced house
- Two double bedrooms
- Extended kitchen
- Beautiful first floor bathroom
- Two reception rooms
- Total floor area 73sqm
- Shutter blinds
- Land scaped rear garden
- Well located for Sydenham high street, Sydenham, Lower Sydenham and Penge East stations
- Within walking distance of the award winning Mayow Park and Alexandra recreation ground.
Rooms
Entrance HallWooden entrance door with double glazed window above, radiator, dado rail, parquet flooring, picture rail.
LoungeDouble glazed bay window to front with shutter blinds, radiator, original style cast iron feature fireplace, parquet flooring, picture rail.
Dining RoomDouble glazed window to rear with shutter blinds, radiator, original style cast iron feature fireplace, fitted shelving and storage in alcoves, parquet flooring, picture rail, door to kitchen.
KitchenDouble glazed door to garden, double glazed window to rear, radiator, range of fitted white high gloss wall and base units with work surface over, one and a half bowl stainless steel sink unit with mixer tap, oven, gas hob and extractor fan to remain, plumbed for washing machine and slimline dishwasher, space for fridge/freezer and tumble dryer, tiled splash back, vinyl flooring.
LandingStorage cupboard, carpet.
Bedroom OneDouble glazed bay window to front with shutter blinds, double glazed window to front with shutter blinds, radiator, carpet, picture rail.
Bedroom TwoDouble glazed window to rear with shutter blinds, radiator, carpet, picture rail.
BathroomOpaque double glazed window to rear with shutter blinds, wall mounted designer radiator, four piece bathroom suite comprising of: freestanding bath with rose gold mixer tap and hand shower, wall mounted inset wash hand basin with rose gold mixer tap and vanity unit under, low level wc, walk in double tray shower cubicle with rose gold mixer shower over and hand shower, built in shelving, herringbone tiled flooring, part tiled walls, spotlights.
Rear Gardenpatio, composite decked area at rear, outside water tap.
