Property Description
**GUIDE PRICE £220,000 - £240,000**
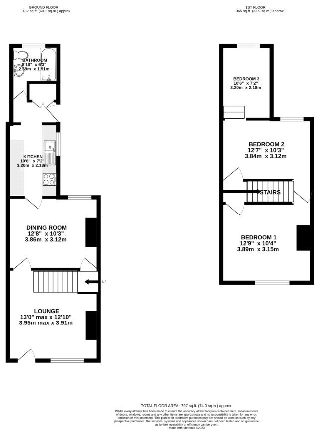
Located on the popular Lester Road in Chatham, this well-presented 3-bedroom terraced house offers comfortable living in a convenient location.
The property features a spacious reception room, perfect for relaxing or entertaining, along with a well-appointed bathroom and three well-sized bedrooms, ideal for families or those needing additional space for a home office or storage.
This freehold property benefits from on-road parking available directly outside the home, making it convenient for residents and visitors alike. With Chatham Station just a 5-minute drive away, this property is ideal for commuters, offering speedy and direct rail links into London.
Ideal for commuters, investors, or those looking to upsize, this home provides a fantastic opportunity to settle into a well-positioned neighbourhood with excellent amenities nearby.
Don’t miss your chance to view – contact us today to arrange a viewing.
- 3 Bedroom Terraced House
- 2 Separate Reception Rooms
- Ideal First Time Buy
- Convenient Location
- Close To Mainline Station
