Property Description
GUIDE PRICE £230,000 - £250,000
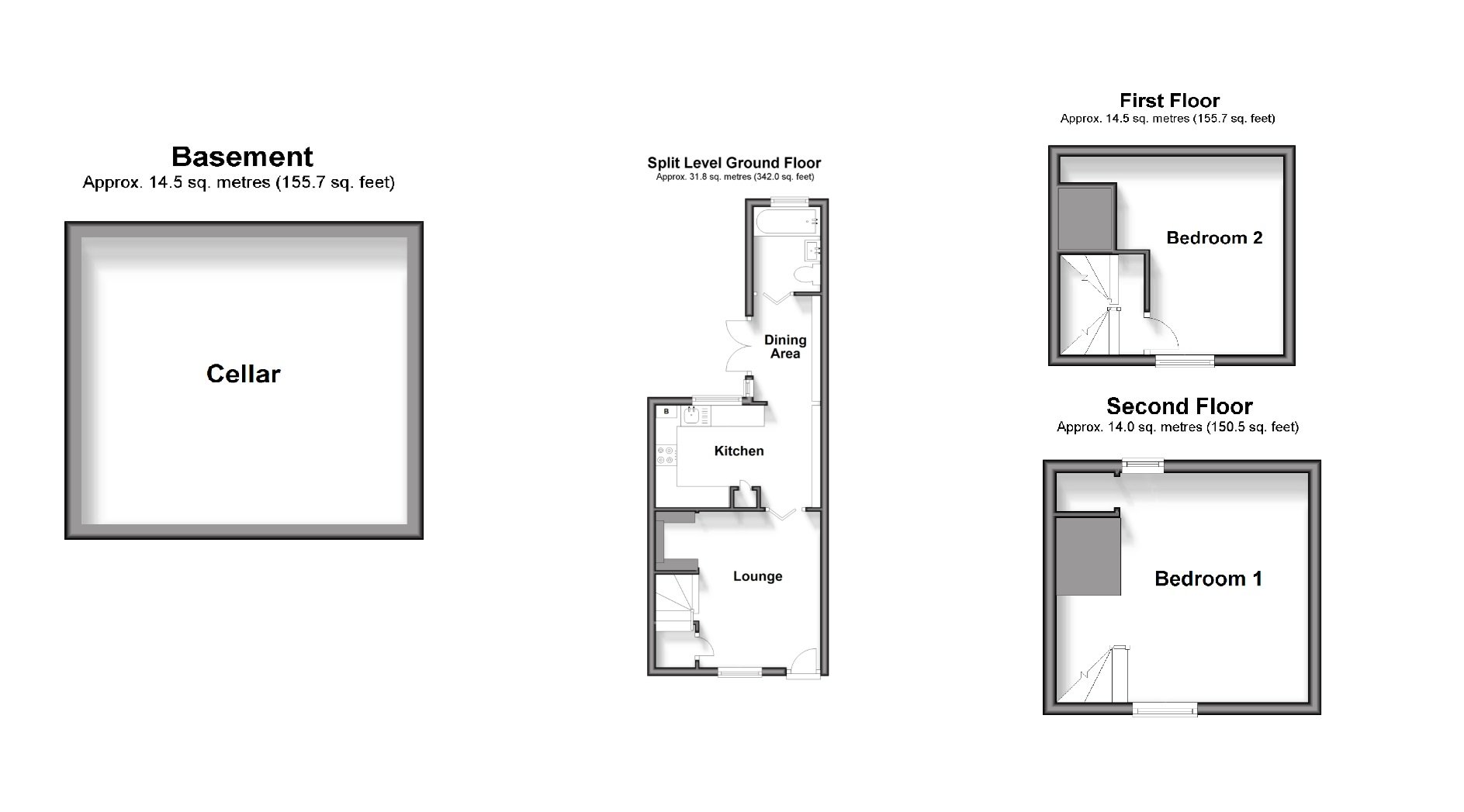
Robinson Michael & Jackson present this 2 bedroom immaculate terraced cottage built in approximately the 1790's. This home bursts with character throughout its four levels.
- 803.9 Square Feet
- 0.6 Miles to Gillingham Station
- 0.9 Miles to Medway Maritime Hospital
- Excellent Local Schools
- Modern Fitted Kitchen
- Viewing Highly Recommended
Rooms
Lounge 3.89m x 3.7mDouble glazed window to front. Boarded flooring. Fitted shutters. Radiator.
Cellar 3.89m x 3.7mStorage. Power. Concrete Flooring.
Kitchen 4.72m x 3.76mDouble glazed window to rear and side. Range of wall and base units with worksurface over. Stainless steel sink. Oven with gas hob. Integrated fridge freezer, dishwasher and washing machine. Boiler. Tiled flooring.
Landing 1.85m x 0.5mDouble glazed window to front. Boarded flooring.
Bedroom One 3.8m x 2.92mDouble glazed window to front. Boarded flooring. Built in storage. Radiator.
Bedroom Two 3.84m x 3.84mDouble glazed window to front and rear. Built in storage. Access to not boarded loft. Carpet. Radiator.
Bathroom 1.9m x 1.45mDouble glazed window to rear. Low level WC. Wash hand basin. Bath with shower attachment. Heated towel rail. Tiled flooring.
Rear Garden 3ftPatio.
ParkingPermit.
