Property Description
Nestled in a prime location with effortless access to Maidstone town centre and its excellent train connections, this charming period-style terraced house exudes timeless appeal. Immaculately presented throughout, the well-proportioned accommodation spans multiple levels, offering versatile living spaces ideal for modern lifestyles.
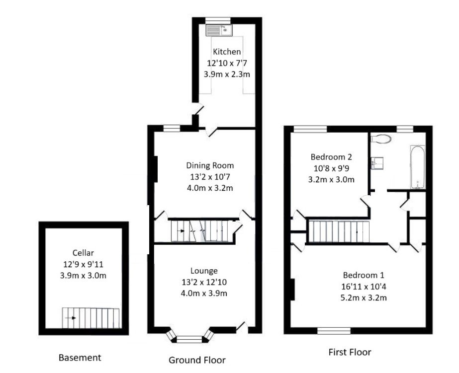
On the ground floor, a welcoming lounge with bay window, flows seamlessly into a dedicated dining room, complemented by a fully equipped kitchen. A practical basement room provides additional flexibility for storage, a home office, or leisure pursuits. Ascending to the first floor reveals two generously sized double bedrooms, both bathed in natural light, alongside a contemporary bathroom.
Stepping outside, the south-facing rear garden delights with its expansive, thoughtfully landscaped design—perfect for al fresco entertaining or serene relaxation amid uninterrupted views. This exceptional property combines period elegance with impeccable upkeep, ready to welcome its next discerning owner.
Contemporary comforts are assured with full double glazing and efficient gas-fired central heating powered by a modern combi boiler.
- Charming period terraced house
- Basement
- Extended Kitchen To Rear
- Alarm System (Shockers on Windows and Doors) & New Double Glazed Windows Throughout
- Two generously sized double bedrooms
- Full double glazing and efficient gas central heating
- Expansive, south-facing landscaped rear garden
- Easy access to Maidstone town centre and train stations
- Spot Lights in the Decked Flooring Area
Rooms
Porch Lounge 4.01m x 3.9mBay window to the front, door, stairs
Dining Room 4.01m x 3.23mWindow to the rear, door, door to basement
Basement 3.89m x 3.02mStairs
Kitchen 3.9m x 2.3mWindow to the side, door leading into the garden, space for white goods
LandingStairs
Bedroom 1 5.16m x 3.15mWindow to the front, storage cupboard, door
Bedroom 2 3.25m x 2.97mWindow to the rear, storage cupboard, door
BathroomWindow to the rear, door, shower over bath, basin, WC, heated towel rail
