Property Description
Guide price £525,000 - £575,000
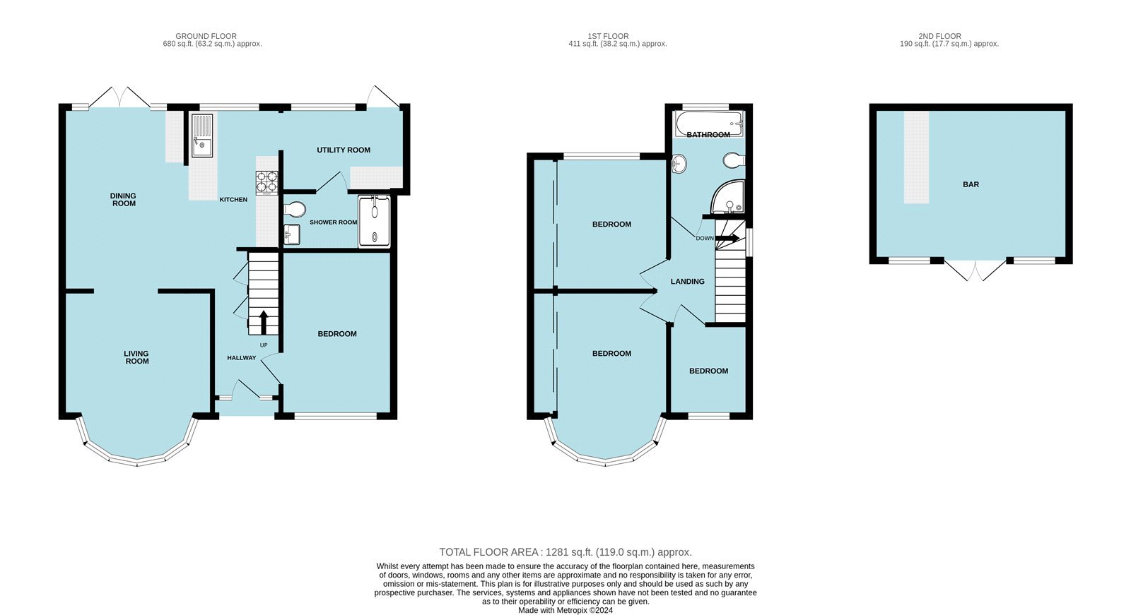
A well presented FOUR BEDROOM SEMI-DETACHED family home with potential to extend further (STPP). Convenient for local schools, shops and transport links.
*13FT LOUNGE*
*17FT KITCHEN/DINER*
*GROUND FLOOR SHOWER ROOM*
*FIRST FLOOR FOUR PIECE BATHROOM SUITE*
*DOUBLE GLAZED/CENTRAL HEATING*
*GARDEN*
*OFF STREET PARKING*
- 13FT LOUNGE
- 17FT KITCHEN/DINER
- GROUND FLOOR SHOWER ROOM
- FIRST FLOOR FOUR PIECE BATHROOM SUITE
- DOUBLE GLAZED/CENTRAL HEATING
- GARDEN
- OFF STREET PARKING
Rooms
Entrance Hall:Wooden door to front, single glazed windows to front and wood style laminate flooring.
Lounge: 4.14m x 3.66mDouble glazed bay window to front, shutter style blinds and wood style laminate flooring.
Kitchen/Diner: 5.36m x 4.47mFitted with a range of wall and base units with contrasting Quartz work surfaces. Integrated oven and hob. Double glazed window to rear, double glazed double doors to rear and wood style laminate flooring.
Utility Room: 3.05m x 2.03mFitted with a two piece suite comprising of Quartz work surfaces, vanity wash hand basin and low level wc. Tiled flooring, double glazed window to rear and double glazed door to rear.
Ground Floor Shower Room:Fitted with a walk in shower cubicle, chrome style heated towel rail and tiled flooring.
Landing:Double glazed window to rear, carpet as fitted and loft access.
Bedroom 1: 4.17m x 3.38mDouble glazed bay window to front, shutter style blinds and carpet as fitted.
Bedroom 2: 3.28m x 3.15mDouble glazed window to rear, built in wardrobe and wood style laminate flooring.
Bedroom 3: 4.11m x 2.72mDouble glazed window to front, shutter style blinds and wood style laminate flooring.
Bedroom 4: 2.29m x 1.88mDouble glazed window to front, shutter style blinds and wood style laminate flooring.
Bathroom:Fitted with a four piece suite comprising of vanity wash hand basin, low level wc, panelled bath and separate walk in shower cubicle. Chrome style heated towel rail, part tiled walls, tiled flooring and double glazed window to rear.
Garden:Mainly laid to lawn, patio area and decked to rear.
Summer House:Wooden door to front and wooden windows to front and vinyl flooring. Power and light.
Parking:Driveway providing off street parking.
