Property Description
Situated on the sought-after Peregrine Drive in Sittingbourne, this four-bedroom detached home offers a spacious and practical layout, ideal for growing families or those seeking generous living space. The property is well-positioned within a residential development popular for its accessibility to local schools, amenities, and transport links. With NO CHAIN, it provides a straightforward purchase opportunity.
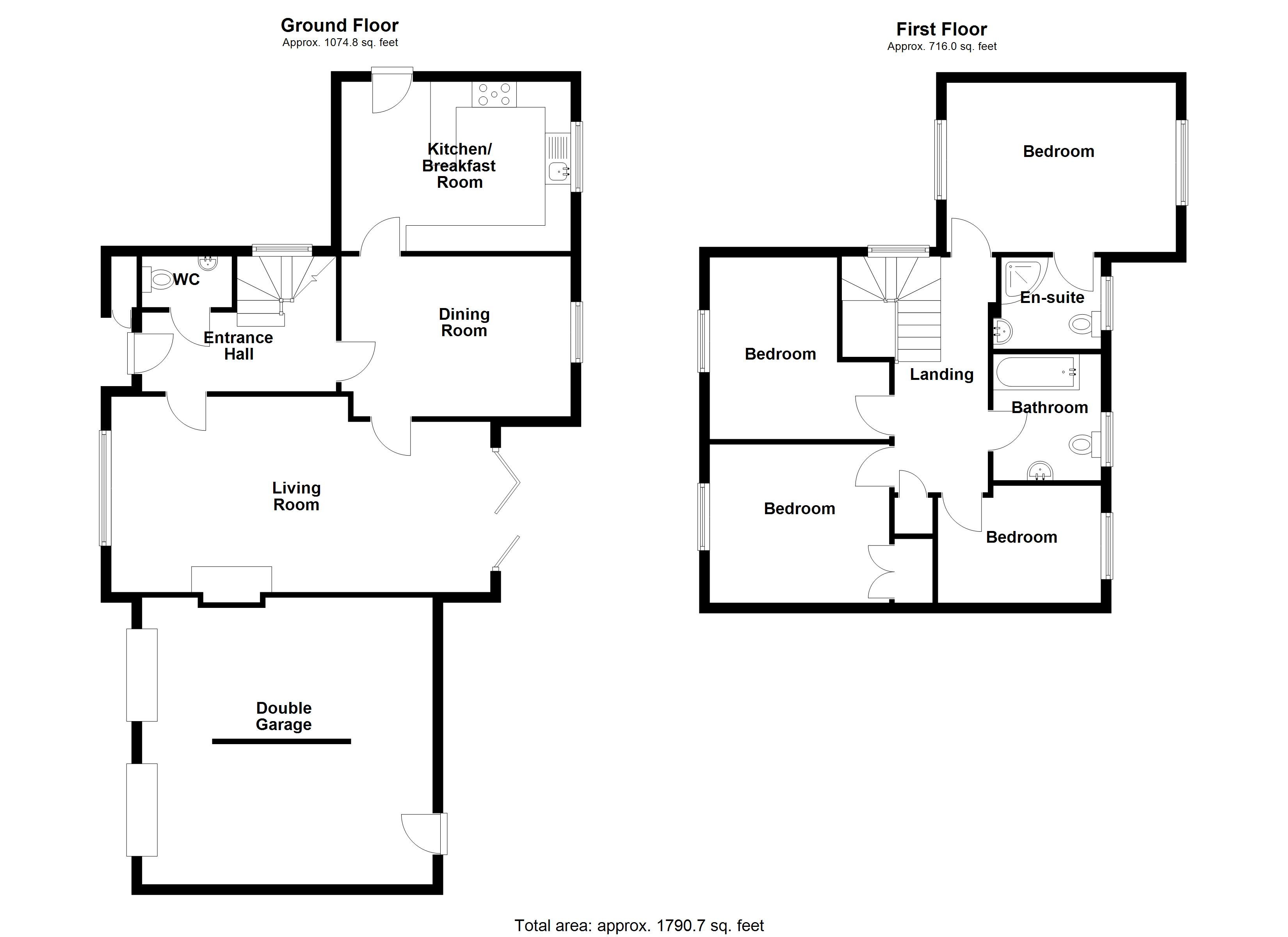
The accommodation comprises a well-proportioned living room, a separate dining area, and a kitchen with ample storage and workspace. Upstairs, there are four good-sized bedrooms, including a main bedroom with en-suite facilities, along with a family bathroom. The layout is functional, offering flexibility for home working or additional guest space.
Externally, the property features a double garage and a private driveway providing off-road parking. The rear garden is enclosed and manageable, offering a blank canvas for landscaping or outdoor entertaining. This is a well-maintained home in a desirable location, ready for immediate occupation.
- No chain!
- Double Garage
- Driveway to front
- Four bedrooms
- 1800 Sqft of space
- Ensuite
