Property Description
Situated in a peaceful cul-de-sac on Pilgrims View, Greenhithe, this impressive three bedroom semi-detached house offers versatile family living with three reception rooms, two bathrooms & a downstairs WC. The property benefits from off-street parking for 3-4 cars with an EV charging point, and a lovely west-facing garden perfect for afternoon and evening sunshine. Ideally located for local transport links, Greenhithe station provides regular services into London and Kent, with easy access to the A2/M25 network and nearby Ebbsfleet International for high-speed connections. Families will appreciate the proximity to well-regarded local schools, as well as a range of amenities including shops, eateries and recreational facilities in Greenhithe and neighbouring Bluewater Shopping Centre. Offered with no forward chain, this home presents a great opportunity for buyers looking for space, convenience and future potential.
- Three Bedroom Semi-Detached House
- Three Reception Rooms
- Two Bathrooms & Downstairs WC
- No Forward Chain
- Off Street Parking for 3-4 Cars
- EV Charging Point
- West Facing Garden
- Cul-de-Sac Location
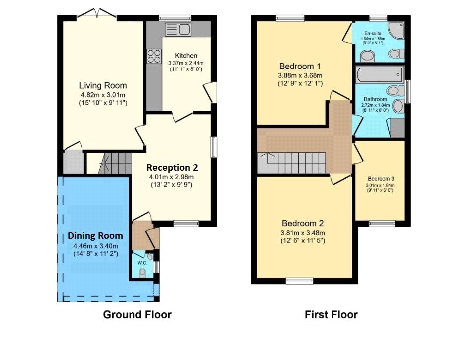
Rooms
Entrance Hall:Laminate flooring.
Cloakroom: 2.34m x 1.6mFrosted double glazed window to side. Low level WC. Wash hand basin. Part tiled walls. Tiled flooring.
Lounge: 4.83m x 3.02mDouble glazed patio door to rear. Under stairs storage cupboard. Radiator. Laminate flooring.
Dining Room: 4.47m x 3.4mDouble glazed window to front. Radiator. Laminate flooring.
Reception Two: 4.01m x 2.97mDouble glazed window to front. Radiator. Laminate flooring. Stairs to first floor.
Kitchen: 3.38m x 2.44mDouble glazed window to rear. Double glazed door to side. Range of matching wall and base units with complementary Quartz work surface over. Stainless steel sink. Integrated electric oven, gas hob and extractor. Integrated fridge freezer. Integrated dishwasher. Integrated tumble dryer. Plumbed for washing machine. Cupboard housing boiler. Radiator. Tiled flooring.
Landing:Carpet. Loft access.
Bedroom One: 3.89m x 3.68mDouble glazed window to rear. Radiator. Built in wardrobes. Carpet.
Ensuite: 1.83m x 1.55mFrosted double glazed window to rear. Low level WC. Vanity wash hand basin. Shower cubicle. Radiator. Tiled walls and flooring. Extractor fan.
Bedroom Two: 3.8m x 3.48mDouble glazed window to front. Radiator. Air conditioning. Laminate flooring.
Bedroom Three: 3.02m x 1.83mDouble glazed window to front. Radiator. Carpet.
Bathroom: 2.74m x 1.85mFrosted double glazed window to side. Low level WC. Pedestal wash hand basin. Panelled bath. Heated towel rail. Storage cupboard. Part tiled walls. Tiled flooring.
