Property Description
*** Guide Price £900,000-£950,000 ***
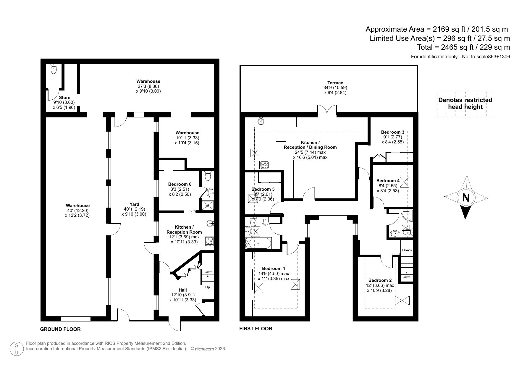
A unique opportunity to purchase this mixed use 5 bedroom detached property with 1000+sqft work space located in the prestigious Thorpes conservation area with a versatile layout allowing for potential conversion into full residential (STUPP) or studio with living accommodation above.
Currently arranged as workshops, storage, kitchen and bathroom on the ground floor and five bedrooms, two bathrooms, kitchen/living area and roof terrace of the first floor.
The property must be viewed to full appreciate what it has to offer.
- Detached
- Prestigious Thorpes conservation area
- Mixed use with potential to convert to fully residential (STUPP) or ground floor studio
- Total floor area 229sqm
- Ground floor workshops/storage
- First floor living accommodation
- Roof terrace
- Yard
- Viewing recommended
- Ideally located for Sydenham high street and station
- Within walking distance of the award winning Mayow Park and Crystal Palace Park
Rooms
Workshop (groundfloor)Ground floor currently arranged as two workshops and storage space.
Kitchen (ground floor)Part opaque glazed wooden door to yard, double glazed window overlooking yard, range of fitted wall and base units with works surface over, one bowl stainless steel sink unit with mixer tap, oven, gas hob and extractor fan to remain, plumbing for washing machine, laminate flooring.
Wc (groundfloor)Ground floor wc, laminate flooring, part tiled walls.
Entrance HallPart opaque glazed wooden entrance door, storage cupboard, door to workshop, stairs up to living area.
LandingThree double glazed windows overlooking yard, wooden flooring, spotlights.
Kitchen/Living AreaKitchen: Velux window to side, range of fitted high gloss wall and base units with marble work surface over, inset stainless steel sink unit with mixer tap, Bosch double ovens, gas hob and extractor fan to remain, breakfast bar, integrated appliances, wooden flooring, spotlights. Living Area: Glazed double doors to roof terrace, wooden flooring, spotlights.
Bedroom OneVelux window to both sides, fitted wardrobes, wooden flooring, spotlights.
Bedroom TwoVelux window to side, radiator, wooden flooring, spotlights.
Bedroom ThreeVelux window to side, radiator, fitted wardrobe, wooden flooring, spotlights.
Bedroom FourVelux window to side, radiator, wooden flooring, spotlights.
Bedroom FiveVelux window to side, radiator, fitted wardrobe, wooden flooring, spotlights.
BathroomVelux window to side, heated towel rail, four piece suite comprising of: panelled bath with mixer tap, mixer shower over, inset wash hand basin with mixer tap and vanity unit under, low level wc, bidet, tiled flooring, tiled walls, spotlights.
Shower RoomVelux window to side, heated towel rail, three piece suite comprising of: enclosed corner shower cubicle with mixer shower over, tiled walls and sliding door, inset wash hand basin with mixer tap and vanity unit under, low level wc, tiled flooring, tiled walls, spotlights.
Roof TerraceSouth Facing.
YardConcrete hardstanding.
