Property Description
*** Guide Price £500,000-£525,000 ***
Three bedroom terraced house located in a quiet cul de sac.
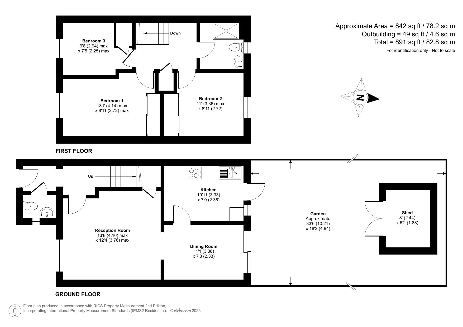
Benefitting from two reception rooms, three good sized bedrooms, ground floor wc and modern first floor shower room, total floor area 78sqm, parking and private rear garden.
Within walking distance of Lower Sydenham station and Bell Green retail park.
- Quiet cul de sac
- Three good sized bedrooms
- Two reception rooms
- Total floor area 78sqm
- Ground floor wc and modern first floor shower room
- Parking
- Rear garden
- Within walking distance of Lower Sydenham station, Bell Green retail park
Rooms
Entrance HallPart opaque double glazed UPVC entrance door, radiator, laminate flooring, door to ground floor wc, textured ceiling.
Ground Floor WcOpaque double glazed window to side, radiator, wall mounted wash hand basin, low level wc, lamiante flooring, textured ceiling.
LoungeDouble glazed window to front, radiator, understairs storage cupboard, entrance to dining room, vinyl flooring, textured ceiling.
Dining RoomDouble glazed sliding door to garden, radiator, door to kitchen, vinyl flooring, textured ceiling.
KitchenPart double glazed door to garden, double glazed window to rear, range of fitted wall and base units with work surface over, one and a half bowl stainless steel sink unit with mixer tap, space for gas cooker, plumbing for washing machine, extractor fan, space for fridge/freezer, tiled splash back, tiled flooring, textured ceiling.
LandingStorage cupboard, laminate flooring, textured ceiling, access to loft.
Bedroom OneDouble glazed window to front, radiator, fitted wardrobe with sliding doors, laminate flooring, textured ceiling.
Bedroom TwoDouble glazed window to rear, radiator, built in wardrobe with sliding doors, laminate flooring, textured ceiling.
Bedroom ThreeDouble glazed window to front, radiator, built in storage cupboard, laminate flooring, textured ceiling.
Shower RoomOpaque double glazed window to rear, three piece suite comprising of: walk in double tray shower cubicle with tiled walls, mixer shower over and hand shower, inset wash hand basin with mixer tap and vanity unit under, low level wc, tiled flooring, tiled walls, extractor fan, textured ceiling.
Rear GardenPatio, path to rear, mature shrub borders, outside water tap, outside light.
ParkingAllocated parking space.
