Property Description
GUIDE PRICE: £475,000-£525,000
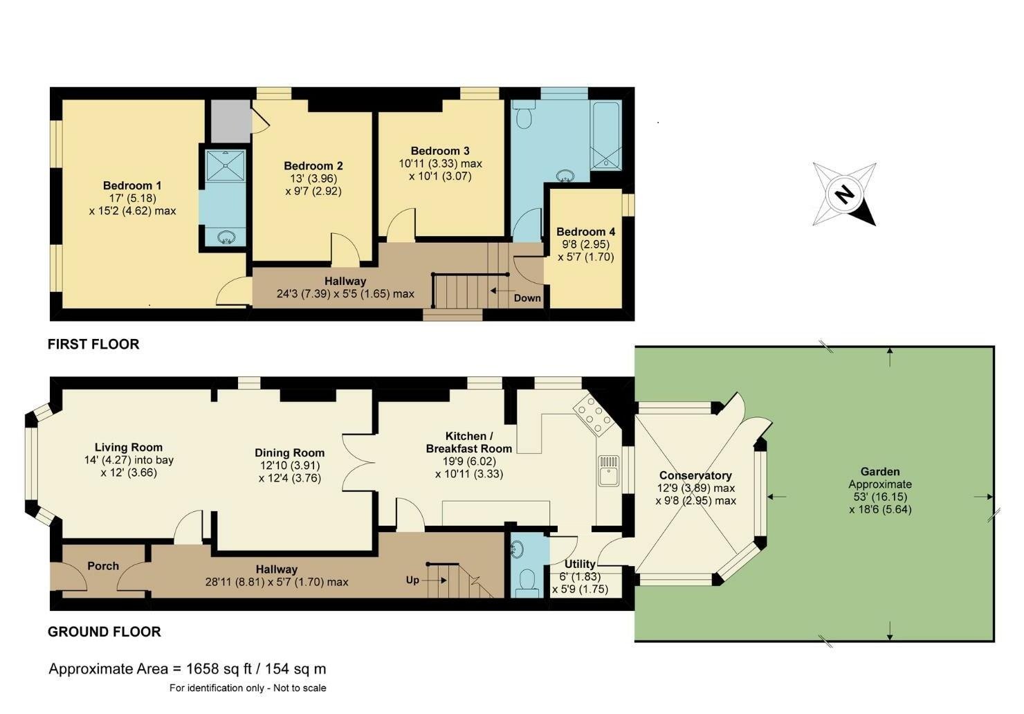
This beautifully presented four-bedroom home is situated in a highly sought-after village in Aylesford, offering the perfect blend of village charm and modern convenience. The property benefits from a private driveway, complete with electric points and side access to the garden. Ideally located, it provides quick access to the M20 and is within easy reach of local schools, shops, pubs, and picturesque countryside walks.
Inside, the home welcomes you through a spacious porch leading to two generous reception rooms, with the dining room featuring a cosy log burner perfect for family gatherings or relaxing evenings.
The property boasts a modern open plan kitchen/breakfast room, fully integrated and equipped with a water softener, flowing seamlessly into a utility area, downstairs WC, and a bright conservatory opening onto the South East facing garden. The garden itself is ideal for outdoor entertaining, complete with a shed fitted with electricity.
Upstairs, you’ll find three well proportioned double bedrooms and a versatile fourth room, ideal as a single bedroom or home office. The main bedroom benefits from an ensuite shower room, while a large family bathroom serves the rest of the household.
This property offers the perfect balance of space, style, and location, making it an excellent family home in one of Aylesford’s most desirable areas.
- Four Bedroom End Of Terrace
- Driveway With Electric Points
- South East Facing Garden
- Utility Room
- Conservatory
- Downstairs WC, Large Family Bathroom & En Suite
- Sought-After Village Of Aylesford
- Open Plan Fully Integrated Kitchen
Rooms
PorchDoor
HallwayDoor, stairs
Living Room 4.27m x 3.66mBay window to the front, open planned, door
Dining Room 3.9m x 3.76mOpen planned, double doors leading into the kitchen
Kitchen/Breakfast Room 6.02m x 3.33mWindow to the side, door, integrated appliances
Utility Room 1.83m x 1.75mDoor
Conservatory 3.89m x 2.95mDouble doors leading into the garden, windows
Garden LandingStairs, window to the side
Bedroom 1 5.18m x 4.62mWindows to the front, door, benefits from en-suite
En SuiteWalk in shower, basin, heated towel rail
Bedroom 2 3.96m x 2.92mWindow to the side, door, storage cupboard
Bedroom 3 3.33m x 3.07mWindow to the side, door
Bedroom 4 2.95m x 1.7mWindow to the rear, door
Main BathroomWindow to the side, shower over bath, basin, heated towel rail, WC, door
