Property Description
Open day Saturday 9th May 2026, call to book your slot!
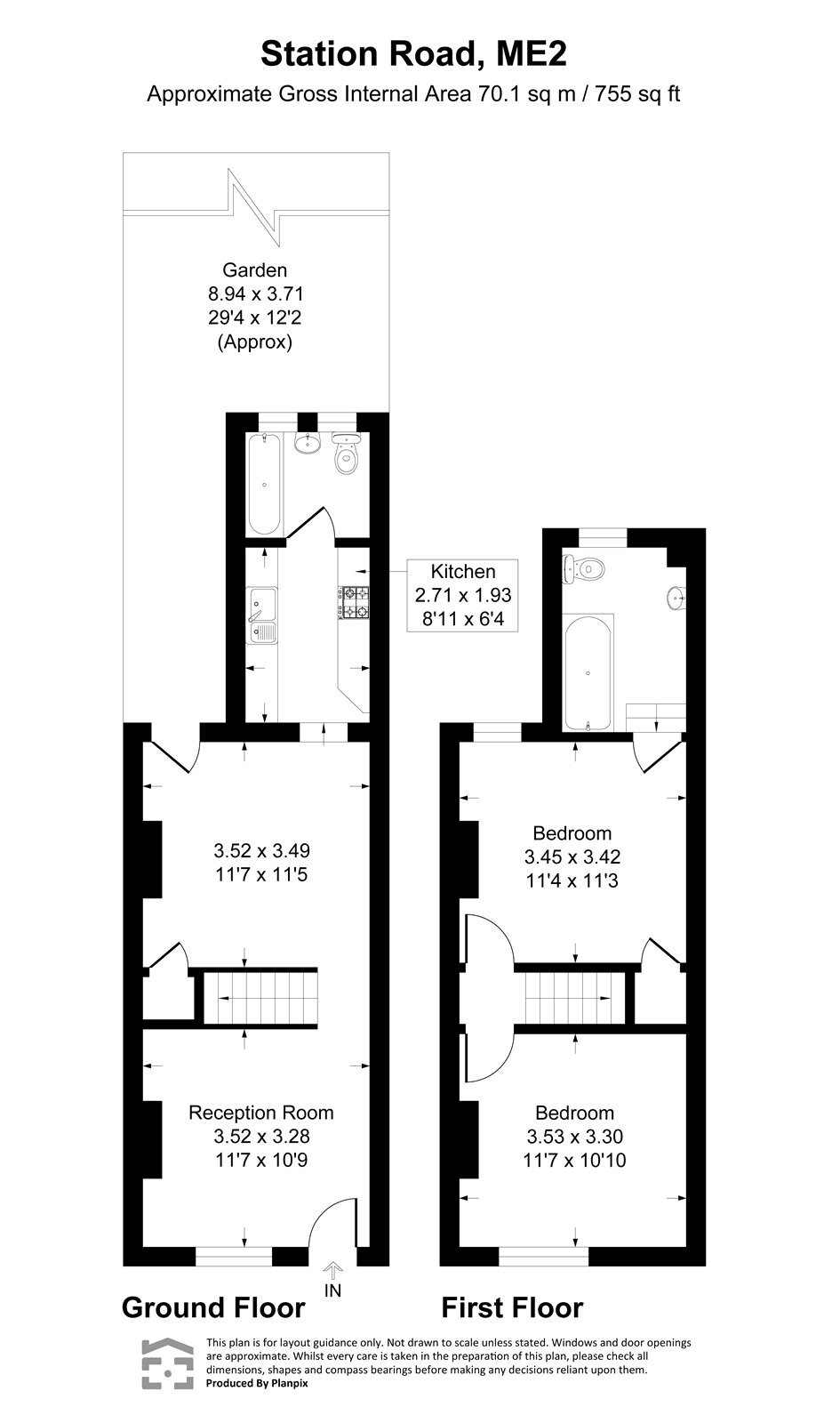
A well-proportioned two-bedroom home, ideally located just 0.2 miles from Strood railway station, making it a great choice for commuters. Offering a practical and comfortable layout, the property features a generous main bedroom with en-suite, providing added convenience for day-to-day living.
Situated only 0.4 miles from Strood High Street, the home enjoys easy access to a variety of local shops, amenities, and essential services, all within a short walk.
Ideal for first-time buyers or investors, this property also benefits from a low-maintenance rear garden—perfect for relaxing or entertaining without the need for extensive upkeep.
Combining a convenient location with well-balanced accommodation, this home presents a fantastic opportunity to step onto the property ladder or expand a portfolio.
- 0.2 miles to Strood Station
- Main bedroom with en-suite
- 0.4 miles to local High Street
- Close to local shops, amenities, and everyday essentials
- Perfect for first time buyers or investors
- Low maintenance rear garden
Rooms
Lounge 3.48m x 3.28mCarpet, double glazed window to front.
Dining Room 3.45m x 3.35mCarpet, radiator, double glazed door to rear, cupboard.
Kitchen 2.84m x 1.88mTiled flooring, wall to base units with roll top work surface over, sink drainer with mixer tap, oven , hob with extractor fan, double glazed window to side.
Ground floor bathroom 1.7m x 1.96mTiled flooring, radiator, pannelled bath with shower over, sink drainer with mixer tap, low level w/c, tiled walls, double glazed window to rear x two.
Bedroom One 3.28m x 3.45mCarpet, radiator, storage cupboard, double glazed window to rear.
Bedroom Two 3.48m x 3.25mCarpet , radiator, double glazed window to rear.
Rear gardenRear access, paved & grass laid to lawn.
