Property Description
*** GUIDE PRICE £675,000 - £700,000 ***
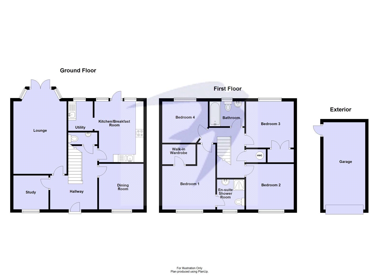
Welcome to this stunning four-bedroom semi-detached executive family home, nestled in one of Sidcup's most sought-after cul-de-sacs. Located in the tranquil Stirling Close, this property combines the best of suburban living with modern amenities and convenient access to local attractions. Upon entering, you are greeted by a spacious and inviting 15FT lounge, perfect for family gatherings and relaxing evenings. The separate dining room offers a more formal setting for entertaining guests, while the study provides a quiet space for work or personal projects. The ground floor also features a convenient WC and a utility room, enhancing the home's practicality. The fitted kitchen/breakfast room is a highlight, designed to meet all your culinary needs with ample space for casual dining.
Upstairs, the family bathroom serves the household's needs with modern fixtures and fittings. The four well-proportioned bedrooms ensure everyone has their own private retreat. The principal bedroom is a true sanctuary, boasting an en-suite shower room and a walk-in wardrobe, providing a touch of luxury and ample storage. Externally, the property includes a garage with additional parking space in front, ensuring convenience for multiple vehicles. The beautifully maintained rear garden offers a serene outdoor space, ideal for relaxation and outdoor activities.
Stirling Close enjoys a peaceful ambiance, overlooking the playing fields of Sidcup Rugby Club. This prime location is also in close proximity to popular schools, local parks, and Sidcup High Street, making it ideal for families. Excellent bus routes provide easy access to surrounding areas, enhancing connectivity.
This exceptional family home in Sidcup represents the perfect blend of comfort, style, and convenience. Arrange a viewing today to fully appreciate all that this wonderful property has to offer.
- Executive Family Home
- Four Bedrooms
- Study
- Ground Floor WC
- Family Bathroom
- En-Suite Shower Room
- 18FT Garage
Rooms
Entrance HallDoor to front, wood laminate flooring, radiator.
Ground Floor CloakroomLow level WC, wash hand basin, radiator, carpet.
Lounge 4.62m x 3.38mDouble glazed window and double glazed double door to rear, coved ceiling, feature fireplace, radiator, wood laminate flooring.
Dining Room 2.84m x 2.84mDouble glazed window to front, coved ceiling, radiator, carpet.
Study 2.24m x 2.16mDouble glazed window to front, coved ceiling, radiator, carpet.
Kitchen 3.89m x 2.84mTwo double glazed windows to rear, double glazed door to rear, coved ceiling, matching range of wall and base units incorporating cupboards and drawers with complementary worktops, stainless steel 1 and 1/2 bowl sink unit with drainer and mixer tap, integrated double oven and hob with filter hood above, radiator, part tiled walls, tiled flooring.
Utility RoomDouble glazed window to rear, coved ceiling, wall and base units with work surface, stainless steel sink unit with drainer and mixer tap, space for fridge/freezer, plumbed for washing machine, part tiled walls, tiled flooring.
LandingCarpet, radiator, access to loft.
Bedroom One 2.8m x 3.38mDouble glazed window to front, coved ceiling, radiator, carpet, access to walk in wardrobe and en-suite shower room.
Walk In Wardrobe 2.24m x 1.27mCarpet, radiator.
En-Suite Shower RoomDouble glazed window to front, enclosed shower room, wash hand basin with storage under, low level WC, radiator, part tiled walls, carpet.
Bedroom Two 2.92m x 2.87mDouble glazed window to front, radiator, carpet.
Bedroom Three 2.95m x 2.87mDouble glazed window to rear, built in wardrobe, radiator, carpet.
Bedroom Four 2.92m x 2.57mDouble glazed window to rear, radiator, carpet.
BathroomDouble glazed frosted window to rear, coved ceiling, panelled bath with shower attachment, pedestal wash hand basin, low level WC, radiator, part tiled walls, tiled flooring.
Garage 5.56m x 2.67mUp and over door, bloc paved for parking in front of garage.
Rear GardenMainly laid to lawn with a patio area, side access.
Front GardenMainly laid to lawn, paved steps leading to front door, pave pathway to side access.
