Property Description
Guide Price - £250,000 - £270,000
Robinson Michael & Jackson are proud to present this 3/4 Bedroom Property on Strover Street, Gillingham. Located Walking Distance to the Train Station, with easy access to London.
- 882.6 Square Feet
- 0.6 Miles to Gillingham Station
- 1.1 Mile to Medway Maritime Hospital
- Excellent Local Schools
- Basement Converted
- No Forward Chain
- Viewing Highly Recommended
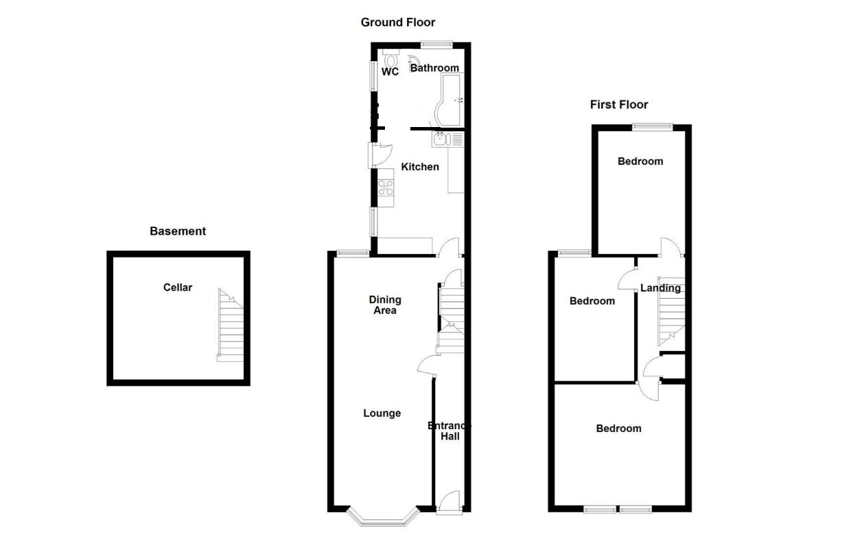
Rooms
Entrance Hallway 3.89m x 0.84mDoor to front. Stairs to first floor. Laminate flooring. Radiator.
Lounge 4.47m x 2.84mDouble glazed bay window to front. Carpet. Radiator.
Dining Room 3.73m x 3.23mDouble glazed window to rear. Carpet. Radiator.
Cellar/Reception Room 4.04m x 3.2mDouble glazed window to front. Carpet. Radiator.
Kitchen 3.68m x 2.74mDouble glazed window to side. Double glazed door. Range of wall and base units with worksurface over. Space for appliances. Enclosed combi boiler cupboard. Vinyl flooring.
Ground Floor Bathroom 2.64m x 2.51mDouble glazed window to rear. Low level WC. Wall mounted wash hand basin. Bath with shower over. Vinyl flooring.
Landing 3.78m x 1.37mCarpet. Storage cupboard.
Bedroom One 4.06m x 3.73mTwo double glazed window to front. Two fitted wardrobes. Carpet.
Bedroom Two 3.7m x 2.51mDouble glazed window to front. Carpet. Radiator.
Bedroom Three 3.78m x 3.1mDouble glazed window to rear. Carpet. Radiator.
Ensuite 1.73m x 1.73mLow level WC. Vanity wash hand basin. Shower. Radiator.
Rear Garden 40ft.Rear access. Fenced in. South West Facing. Tap.
