Property Description
**Guide Price £450,000 to £500,000**
**OPEN DAY SATURDAY 7TH FEBRUARY, PLEASE CALL TO ARRANGE AN APPOINTMENT**
A stunning and well presented two bedroom period built end of terrace house overlooking Winns Common convenient for bus routes to Woolwich.
- Potential Off Street Parking
- Through Lounge/Dining Room
- First Floor Four Piece Bathroom
- Modern Kitchen
- Landscaped Garden to Rear
- Convenient for Access to Woolwich
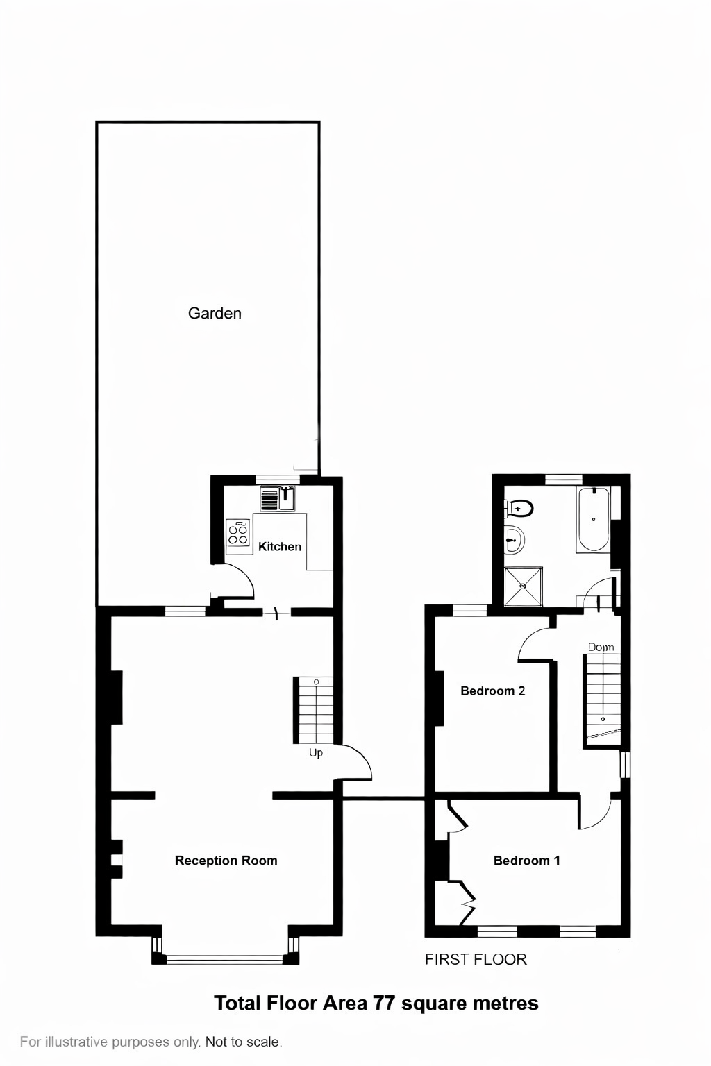
Rooms
Entrance HallEntrance door to side, stairs to first floor, door to living room.
Through Lounge/Dining Room 4.22m (at widest point) x 6.25mDouble glazed square bay window to front with fitted window shutters, stripped and varnished floorboards, feature brick built fireplace with built in cupboards and shelving to the side, double glazed window to rear, understairs storage cupboard, built in cupboard.
Kitchen 2.9m x 2.57mDouble glazed window to rear, double glazed door to side, tiled flooring, range of wall and base untis with complimentary work surfaces, built in oven, seperate four ring hob, local tiling, wall mounted boiler.
First Floor LandingDouble glazed window to side, carpet, radiator, access to loft.
Bedroom 1 4.22m x 3mTwo double glazed windows to front overlooking Winn's common with fitted window shutters, built in wardrobes.
Bedroom 2 3.9m x 2.57mDouble glazed window to rear with fitted window shutters.
BathroomFour piece suite comprising tiled sided bath, vanity wash hand basin, shower cubicle and low level WC, tiled flooring, local wall tiling.
