Property Description
Open day Saturday 2nd May by appointment only!
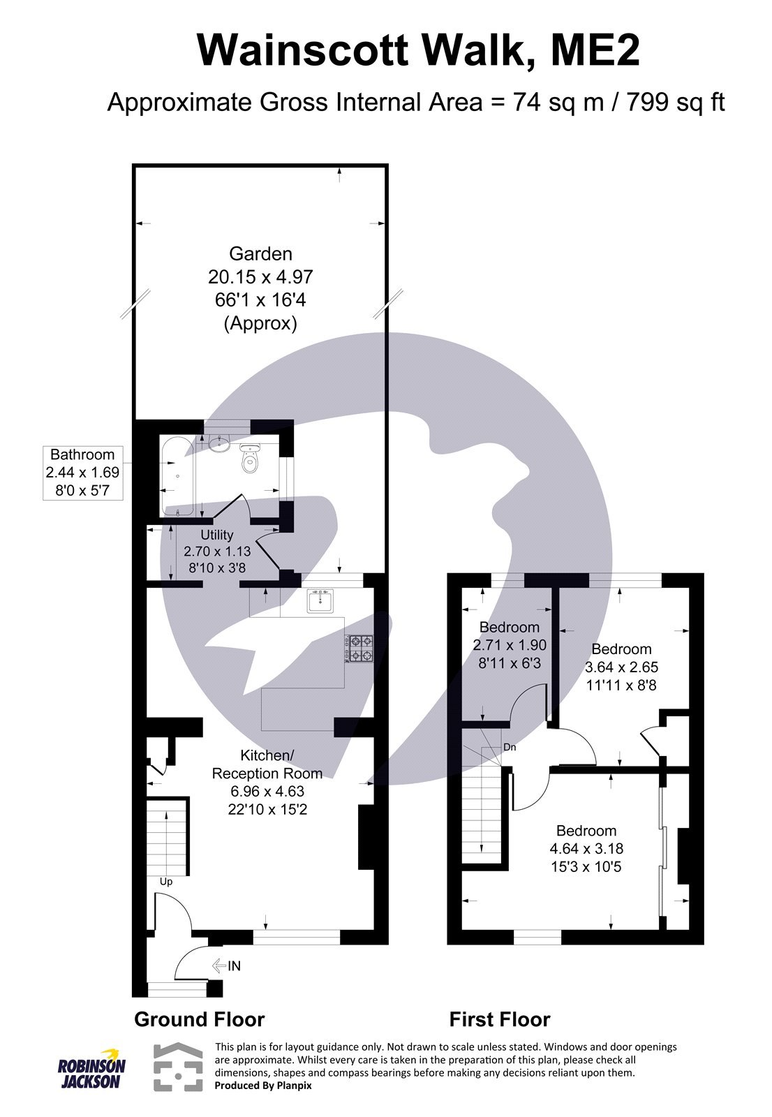
Tucked away in a quiet cul-de-sac, this well-presented three-bedroom home on Wainscott Walk offers the perfect blend of comfort and convenience in a highly sought-after location.
The property benefits from off-street parking and enjoys a peaceful residential setting, ideal for families or professionals alike. Inside, the home provides generous living space across three bedrooms, making it well-suited for modern living.
Positioned within walking distance of local amenities, including shops, schools, and everyday essentials, the property also offers excellent transport links with easy access to the A2/M2, making commuting straightforward.
A fantastic opportunity to secure a home in a desirable and well-connected area.
- Sought after location
- Off street parking
- Quiet cul de sac
- Walking distance to local amenities
- Easy access to A2/M2
Rooms
Lounge 4.62m x 4mLaminate flooring, single radiator, double radiator, double glazed window to front, stairs to first floor.
Kitchen 4.6m x 2.64mTiled flooring, wall to base units with roll top work surface over, space for appliances, extractor fan, double glazed window to rear, sink drainer with mixer tap.
Utility Room 2.6m x 0.91mTiled flooring, double glazed door to reat leads to rear garden, space for appliances.
Ground floor bathroom 2.44m x 1.65mLaminate flooring, low level w/c, wall mounted towel rail, double glazed window to rear & side, panelled bath with mixer tap, basin with two taps.
Landing Bedroom One 4.75m x 3.18mLaminate flooring, single radiator, built in wardrobes, coved ceiling.
Bedroom Two 3.58m x 2.62mLaminate flooring, single radiator, double glazed window to rear, storage cupboard.
Bedroom Three 2.67m x 1.88mLaminate flooring, single radiator, loft access, double glazed window to rear.
Rear gardenDecked area, grass laid to lawn, rear access, outside tap,
