Property Description
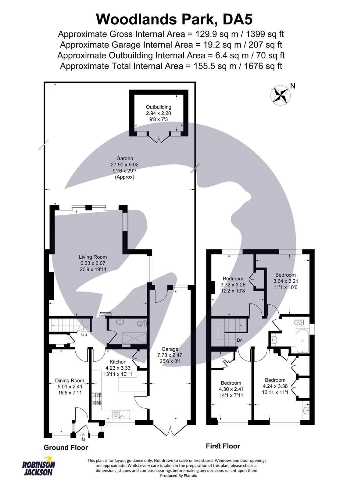
Located on Woodlands Park, widely regarded as the premium road in Joydens Wood, this extended four-bedroom semi-detached home presents a rare opportunity to acquire a spacious and well-positioned family residence in a highly sought-after location.
This generously proportioned property offers flexible living accommodation ideal for growing families, with the added comfort of double glazing and gas central heating throughout. The thoughtfully extended layout includes gernerous sized reception areas and well-sized bedrooms, ensuring ample space for both everyday living and entertaining.
To the rear, the home boasts a beautifully maintained and peaceful garden, complete with a southerly-facing aspect, allowing natural light to flood the space and providing a perfect setting for relaxing.
Further benefits include no onward chain, offering buyers a smoother and faster purchase process.
Early viewing is highly recommended.
- 2 Generous sized reception rooms
- Ground floor shower room
- 4 Well-proportioned bedrooms
- Double glazed and gas centrally heated
- Ample off road parking and garage
- Southerly facing rear garden.
