Property Description
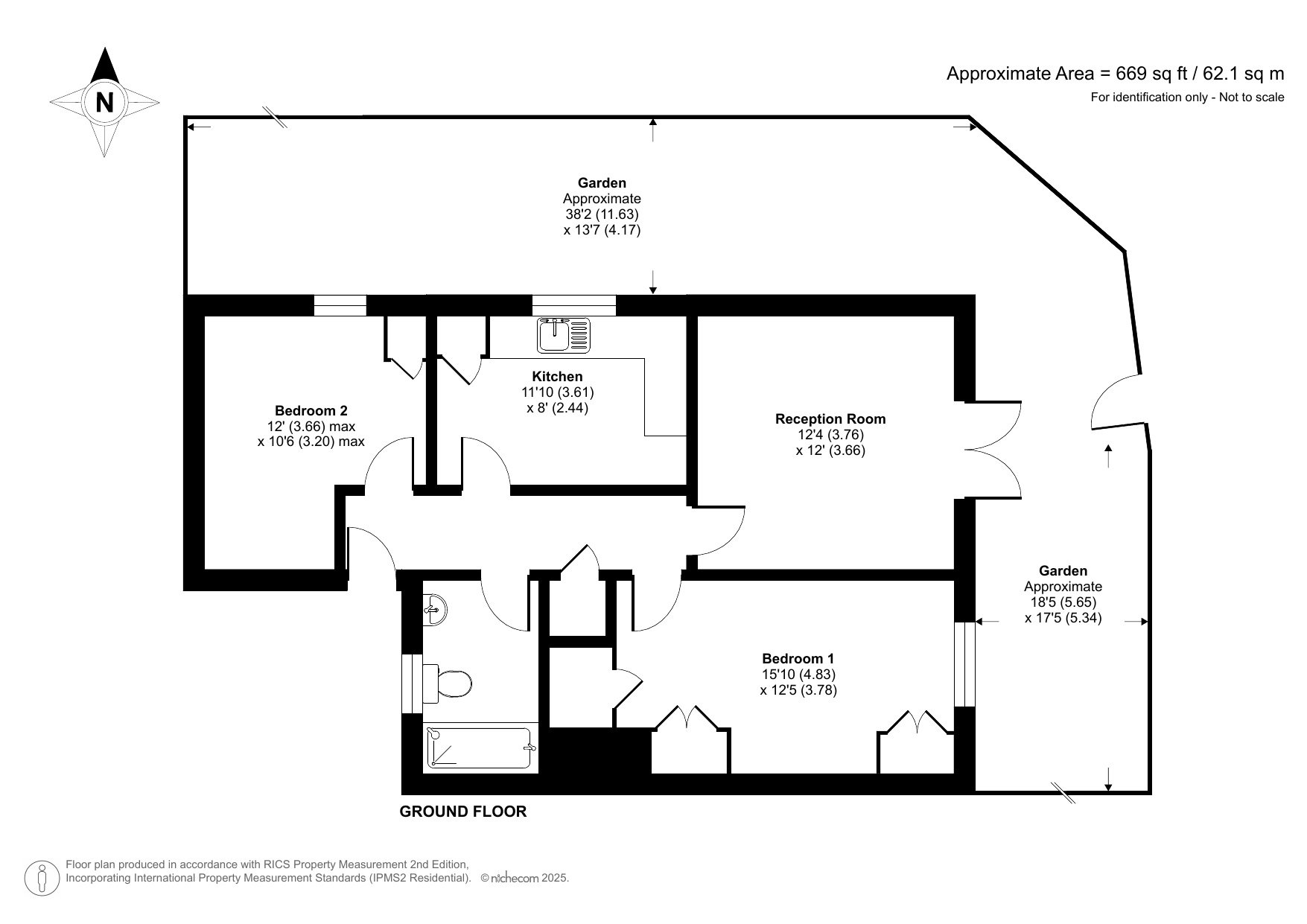
This well-proportioned, purpose-built two double bedroom ground floor maisonette offers a fantastic opportunity for first-time buyers, or downsizers . Ready to move straight into, the property boasts a bright and airy interior throughout, combining comfort with convenience.
Step into a spacious living space with excellent natural light, modern kitchen and two generous double bedrooms. One of the standout features is the direct access to a private garden, complete with a patio and low-maintenance astro turf, perfect for relaxing or entertaining. There's also rear access for added convenience.
Situated just minutes’ walk from Sydenham Station, you'll benefit from excellent transport links into Central London and beyond
- Two Double Bedrooms
- Modern Purpose Built Flat
- Chain Free
- Leasehold
- Long Lease
- Ground Floor
- Direct Access to Private Garden
- Double Glazing
- Wood Flooring Where Stated
- Situated in Lawrie Park Triangle
- Excellently located for Sydenham Station
- Conveniently located for local high street shops and amenities and Crystal Palace Park
Rooms
Entrance HallWood flooring, radiator
LoungeDouble glazed doors to side, wood flooring, radiator
KitchenDouble glazed window to rear, wall and base units, laminate work surface, stainless steel sink, integrated fridge/freezer, integrated oven, hob and extractor, space for washing machine, tiled flooring
Master BedroomDouble glazed window to side, wood flooring, built in wardrobe, radiator
Bedroom TwoDouble glazed window to rear, wood flooring, radiator
BathroomDouble glazed window to side, panelled bath, rainfall shower head, shower screen, wash hand basin, with in vanity unit, low flush WC, vinyl flooring
GardenPaved, astro turf
