Property Description
**** GUIDE PRICE £325,000-£350,000 ****
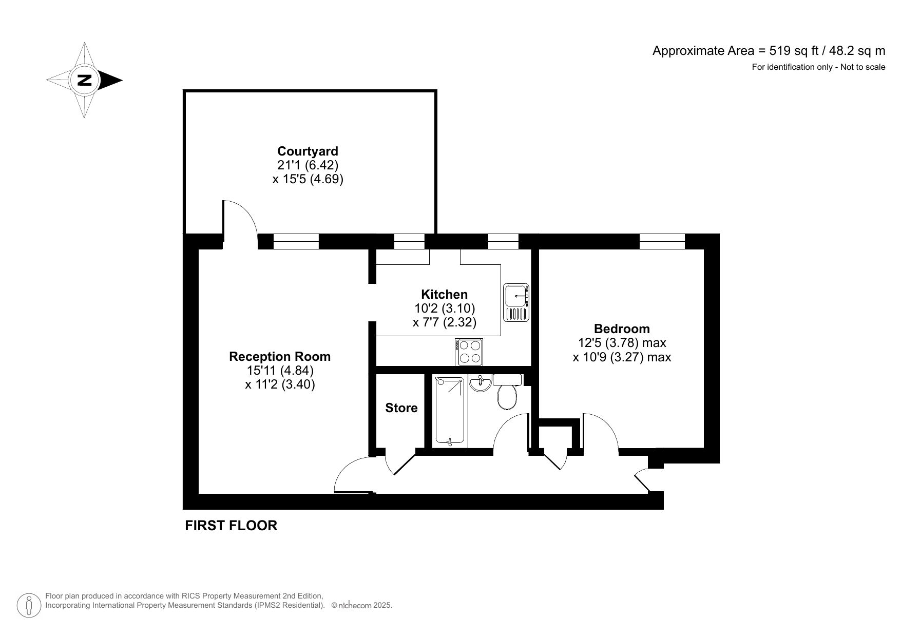
Well presented first floor purpose built maisonette located in a cul de sac.
Benefitting from 12'5 master bedroom, 15' lounge/diner, roof terrace, long lease, modern kitchen and bathroom.
Well located for Forest Hill and Honor Oak Park stations and within walking distance of schools, shops and Bylthe Hill fields.
- Purpose built maisonette
- Long lease
- Roof terrace
- 15' Lounge
- Modern kitchen and bathroom
- 12' Master bedroom
- Ideal first time buy
- Well located for Forest Hill and Honor Oak Park stations
- Within walking distance of shops, schools and Blythe Hill Fields
Rooms
Entrance HallEntrance door with window above, radiator, two storage cupboards, laminate flooring.
LoungeDouble glazed door to roof terrace, double glazed window to rear, radiator, laminate flooring, spotlights, entrance to kitchen.
KitchenDouble glazed window to rear, radiator, range of fitted wall and base units with work surface over, one bowl stainless steel sink unit with mixer tap, space for gas cooker, plumbing for washing machine, tiled splash back, wall mounted boiler, vinyl tiled flooring, spotlights.
BedroomDouble glazed window to rear, radiator, laminate flooring, spotlights.
BathroomThree piece bathroom suite comprising of: panelled bath with mixer tap and shower attachment, pedestal wash hand basin with mixer tap and low level wc, tiled flooring, part tiled walls, extractor fan, spotlights.
Roof Terrace
