Property Description
Purpose built first floor maisonette in need of some modernisation.
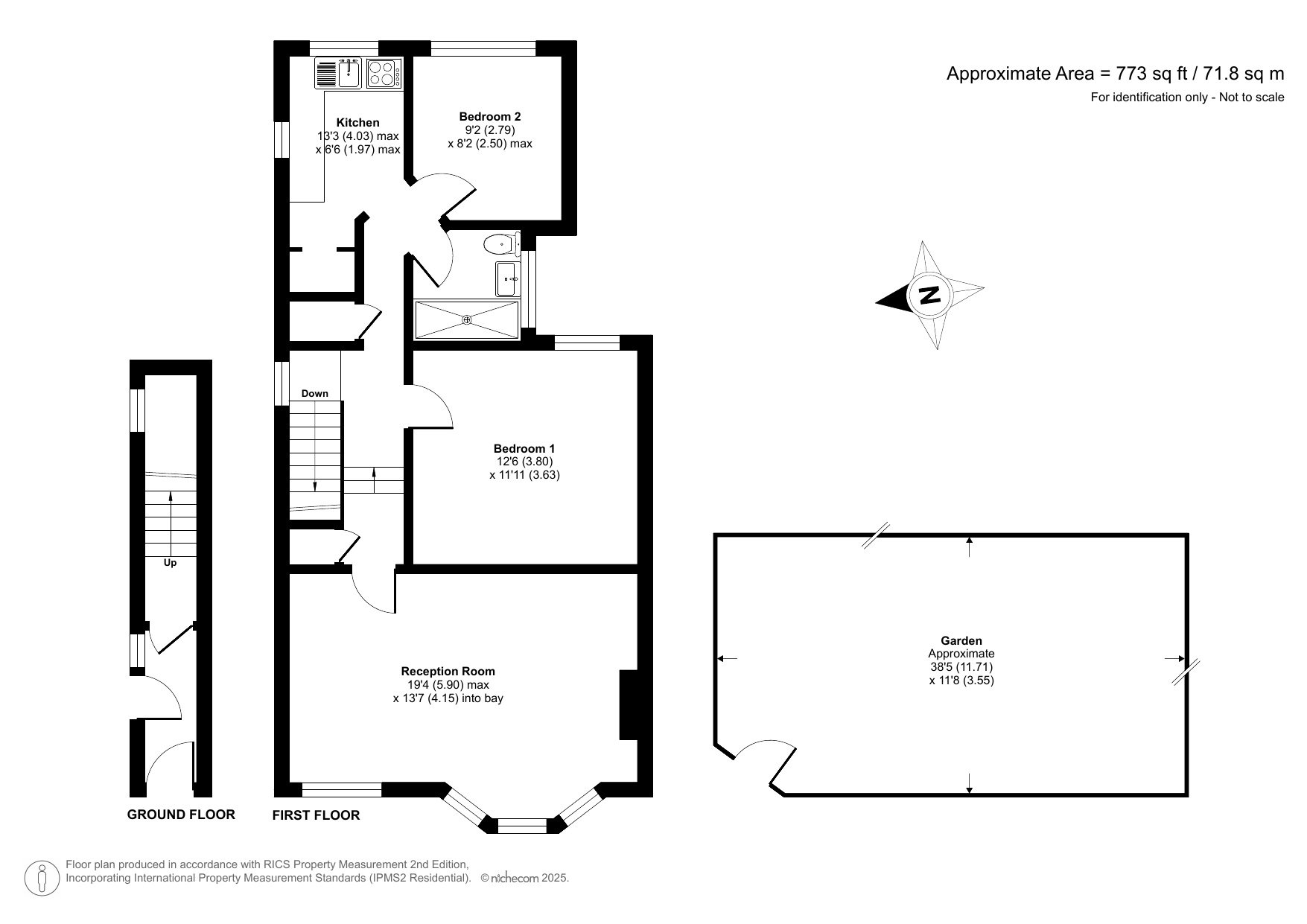
Benefitting from 19' lounge, two bedrooms, rear garden and being sold with no onward chain.
Within walking distance of Sydenham station and high street and well located for Crystal Palace Park and the award winning Mayow Park.
- First floor purpose built maisonette
- In need of some modernisation
- No onward chain
- Overall floor area 73sqm
- Private rear garden
- Well located for Sydenham station and high street
- Within walking distance of Crystal Palace Park and the award winning Mayow Park
Rooms
Entrance HallPart opaque double glazed entrance door, part glazed wooden door to side, carpet, stairs to first floor.
LandingWindow to side, radiator, two storage cupboards, carpet.
LoungeDouble glazed bay window to front, double glazed window to front, two radiators, carpet, picture rail.
KitchenWindow to side and rear, range of fitted high gloss grey wall and base units with work surface over, one bowl stainless steel sink unit with separate taps, space for cooker, plumbing for washing machine, space for fridge/freezer, vinyl flooring.
Bedroom OneWindow to rear, radiator, picture rail.
Bedroom TwoWindow to rear, radiator, carpet, picture rail.
BathroomOpaque window to side, radiator, adapted walk in shower cubicle with electric power shower over, pedestal wash hand basin with separate taps, low level wc, vinyl flooring, part tiled walls.
Rear GardenIn need of work.
