Property Description
Attractive ground floor 1930's purpose built maisonette.
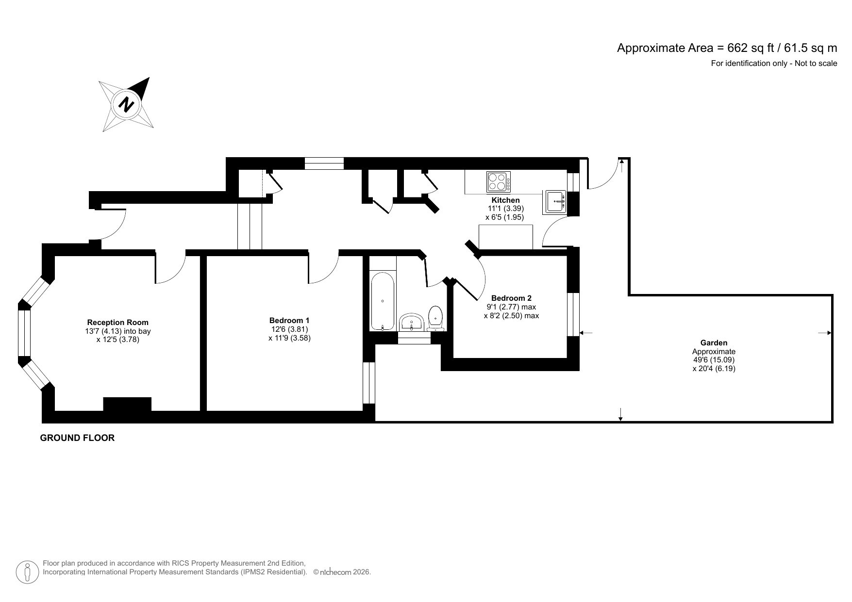
benefitting from two good sized bedrooms, beautiful private rear garden with pergola, ample storage, total floor area 63sqm and 11' fitted kitchen with integrated appliances.
Set within a highly desirable location, moments from Sydenham Station, conveniently located for local high street shops and amenities, Wells Park and Sydenham Hill Wood & Cox 's Walk
- Two Double Bedrooms
- 1930's Purpose Built Maisonette
- Long Lease
- Ground Floor
- Lovely Landscaped Private Garden
- Double Glazing
- Integrated Appliances
- Moments from Sydenham Station
- Conveniently located for local high street shops and amenities, Wells Park and Sydenham Hill Wood & Cox 's Walk
Rooms
Entrance HallUPVC part double glazed entrance door, radiator, opaque double glazed window to side, stripped and varnished floorboards, storage cupboard, dado rail, picture rail.
LoungeDouble glazed bay window to front, radiator, stripped and varnished floorboards, picture rail.
Bedroom OneDouble glazed window to side, radiator, stripped and varnished floorboards, picture rail.
Bedroom TwoDouble glazed window to rear, radiator, Stripped and varnished floorboards, picture rail, coved ceiling.
KitchenDouble glazed window to rear, part double glazed door to garden. range of fitted wall and base units with Beech work surface over, one bowl black sink unit with mixer tap, oven, hob and extractor to remain, Integrated dish washer, tiled splash back, wall mounted boiler, tiled flooring, coved ceiling.
BathroomOpaque double glazed window to side, heated towel rail, three piece bathroom suite comprising of: tiled panelled bath with mixer tap and mixer shower over, wall mounted wash hand basin with mixer tap and low level wc, stripped and painted floorboards.
GardenDecked area, outside power, water tap, side access, steps down to mainly laid to lawn area with shrub borders, decked area at rear with pergola.
