Property Description
*** Guide Price £425,000-£450,000 ***
Spacious and well presented purpose built first floor maisonette located in the ever popular Lawrie Park Triangle.
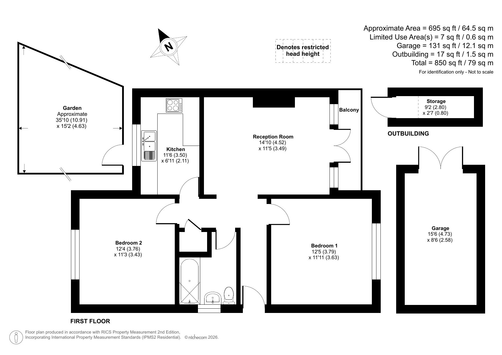
Benefitting from two double bedrooms, share of freehold, private rear garden, garage en bloc, balcony and total floor area of 64sqm.
Ideal for both Sydenham and Penge West stations, Crystal Palace Park and Triangle and Sydenham High Street
- First floor maisonette
- Two Double Bedrooms
- External storage cupboard
- Total floor area 64sqm
- Situated in the ever popular Lawrie Park Triangle
- Share of Freehold
- Garage En-Bloc
- Beautiful Rear Garden
- Ample Storage
- Ideal for Sydenham and Penge West Stations and Sydenham high street
- Excellently located for Crystal Palace Park
Rooms
Entrance HallPart opaque glazed wooden entrance door, radiator, built in storage cupboard, stripped and varnished floorboards, coved ceiling.
LoungeDouble glazed double doors to balcony, two double glazed windows to front, radiator, fireplace with tiled insert and hearth and wooden surround, stripped and varnished floorboards, coved ceiling.
KitchenDouble glazed window to rear, range of wall and base units with work surface over, double bowl stainless steel sink unit with mixer tap, oven, gas hob space for fridge/freezer, plumbing for washing machine, wall mounted boiler, tiled splash back, vinyl flooring, coved ceiling.
Bedroom OneDouble glazed window to front, radiator, stripped and varnished floorboards, coved ceiling.
Bedroom TwoDouble glazed window to rear, radiator, stripped and varnished floorboards, coved ceiling.
BathroomOpaque double glazed window to side, radiator, three piece bathroom suite comprising of: panelled bath with mixer tap and shower attachment, pedestal wash hand basin with separate taps, low level wc, vinyl flooring, part tiled walls, coved ceiling.
Balcony Rear GardenConcrete hardstanding, steps up to path, mainly laid to lawn with mature shrub borders, rear access.
GarageWooden double doors.
External StorageExternal storage cupboard.
