Property Description
*** Guide Price £250,000 - £300,000 ***
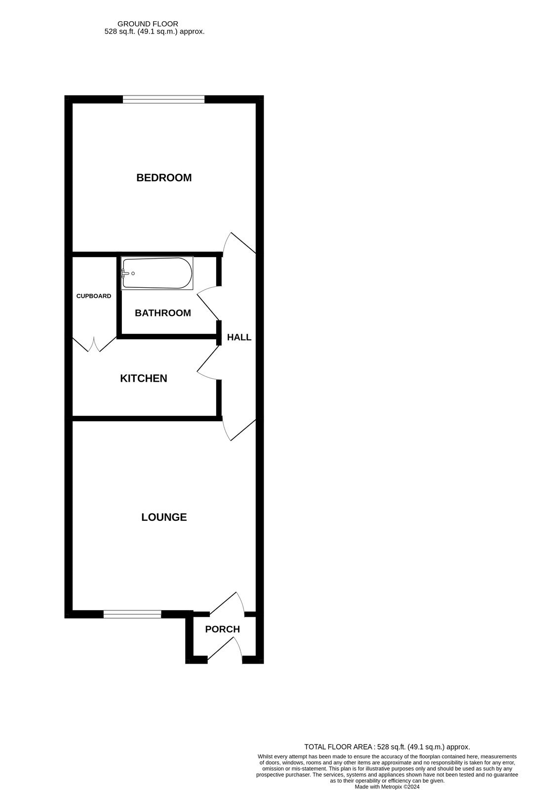
***A modern one bedroom ground floor purpose built maisonette located in Woolwich Town Centre. Offered well presented, with an allocated parking space and chain free. Viewing is highly recommended.***
- 13' Living Room
- Modern Fitted Kitchen
- Double Bedroom
- Modern Bathroom
- Allocated Residents Parking
- Long Lease
Rooms
Entrance Porch to Front Lounge: 4.22m x 11Double glazed window to front. Wood laminate flooring, serving hatch.
Kitchen: 1.73m x 3.28mFitted with a range of modern wall and base units with complimentary work surfaces. Stainless steel oven and hob. Intergrated appliances including; washing machine, dish washer and fridge freezer. Wood laminate flooring, tiled walls.
Bedroom: 3.38m x 2.97mDouble glazed window to rear. Wood laminate flooring.
Bathroom:Fitted with a three piece white suite comprising panelled bath with shower over, low level WC and pedesatal wash hand basin. Vinyl flooring, extractor fan.
Car Parking:The property benefits from one allocated parking space with a parking barrier located in a residents’ car park to rear.
