Property Description
Well presented ground floor purpose built flat being sold with no onward chain.
Benefitting from share of freehold, modern kitchen and bathroom, master bedroom with fitted wardrobes, allocated parking space and communal garden.
Within walking distance of Sydenham and Lower Sydenham stations, Bell Green retail park and the award winning Mayow Park
- Purpose built ground floor flat
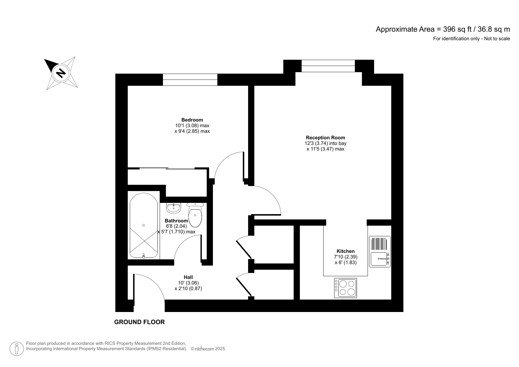
- Total floor area 35sqm
- Modern kitchen and bathroom
- Allocated parking
- Communal garden
- Master bedroom with built in wardrobe
- No chain
- Well located for Sydenham and Lower Sydenham stations, Bell Green retail park and the award winning Mayow Park
Rooms
Communal EntrancePart glazed communal entrance door, vinyl flooring.
Entrance HallEntrance door, two storage cupboards, laminate flooring, dado rail, textured ceiling.
LoungeDouble glazed bay window to rear, storage heater, laminate flooring, dado rail, textured ceiling, arched entrance to kitchen.
KitchenRange of fitted white wall and base units with work surface over, oven, hob and extractor fan to remain, one bowl stainless steel sink unit with mixer tap, space for fridge/freezer, plumbing for washing machine, vinyl flooring, tiled splash back, textured ceiling.
BedroomDouble glazed window to rear, wall mounted electric heater, laminate flooring, built in wardrobe, textured ceiling.
BathroomThree piece bathroom suite comprising of: panelled bath with mixer tap and shower attachment, pedestal wash hand basin with separate taps and low level wc, tiled flooring, part tiled walls, extractor fan, textured ceiling.
Allocated ParkingAllocated parking space.
Communal Gardens
