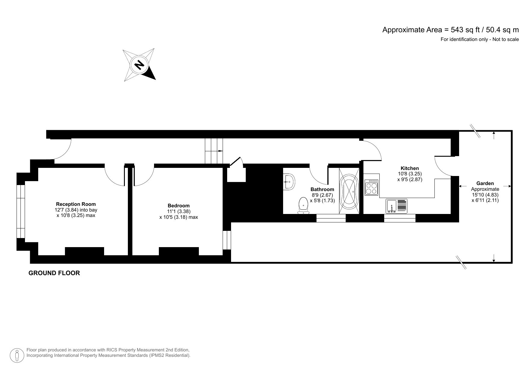
Property Description
Spacious and well presented ground floor maisonette located in an attractive period building.
Benefitting from private rear garden, share of freehold, 12' lounge, double bedroom, modern bathroom and period features.
Within walking distance of Lower Sydenham station, Bell Green retail park and well located for the award winning Mayow Park.
- Period property
- Ground floor maisonette
- Total floor area 48sqm
- Rear garden
- 12' Lounge
- Period features
- Double bedroom
- Modern bathroom
- Well located for Lower Sydenham station and Bell Green retail park.
- Within walking distance of the award winning Mayow Park.
Rooms
Entrance HallPart opaque glazed wooden entrance door, radiator, storage cupboard, dado rail, carpet, spotlights.
LoungeFull height double glazed windows to front, radiator, carpet, picture rail.
KitchenDouble glazed window to side, part opaque glazed wooden door to garden, radiator, range of fitted wall and base units with work surface over, one bowl stainless steel sink unit with mixer tap, oven, gas hob and extractor fan to remain, plumbing for washing machine, cupboard housing wall mounted boiler, tiled splash back, vinyl flooring.
BedroomDouble glazed window to rear, radiator, carpet.
BathroomOpaque double glazed window to side, radiator with cover, three piece bathroom suite comprising of: panelled bath with mixer tap and shower attachment, inset wash hand basin with mixer tap and vanity unit under, low level wc, part tiled walls, tiled flooring, extractor fan, spotlights.
Rear GardenConcrete hardstanding, raised flower bed, rear access (neighbour also has access through garden).
