Property Description
**** Guide Price £300,000-£325,000 ****
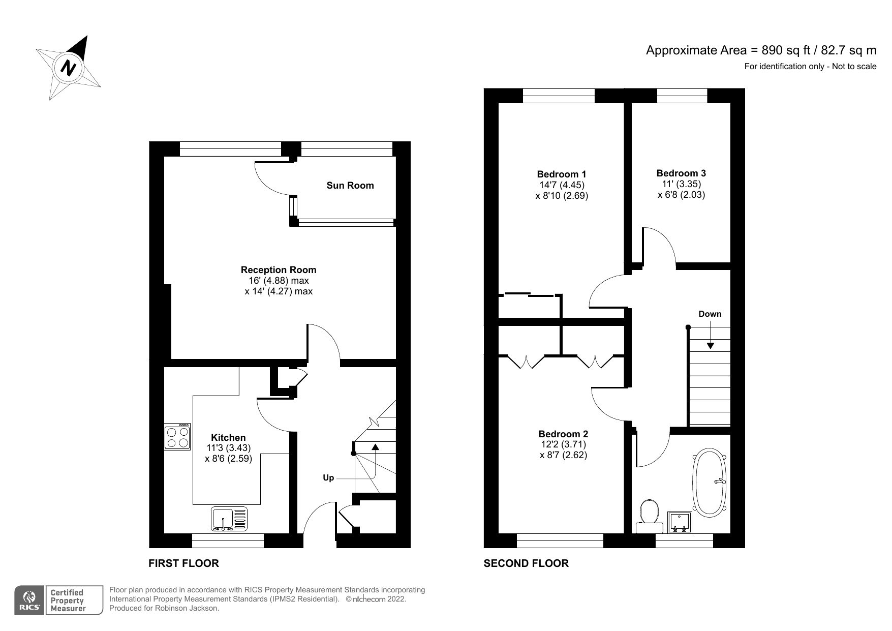
Fantastic first floor split level modern purpose built maisonette offered chain free with three double bedrooms, long lease, double glazing and laminate flooring set within a popular location, ideal for Sydenham Station, conveniently located for local independent shops, eateries and bars, Wells Park and Sydenham Hill Wood & Cox 's Walk
- Three Double Bedrooms
- Modern Purpose Built Maisonette
- Chain Free
- Leasehold
- First Floor
- Split Level
- Double Glazing
- Laminate Flooring Where Stated
- Comfortable Family Home
- Ideal for Sydenham Station
Rooms
Communal EntranceSplit level, first floor maisonette
Entrance HallBuilt in cupboards, laminate flooring, radiator
LoungeDouble glazed windows to rear, laminate flooring, radiator
KitchenDouble glazed windows to front, range of wall and base units with work surface over, one bowl stainless steel; sink unit with mixer tap, space for gas cooker, pluming for washing machine, integrated fridge/freezer, tiled splash back, laminate flooring.
Bedroom OneDouble glazed windows to front, built in cupboard, carpet
Bedroom TwoDouble glazed windows to rear, carpet, radiator
Bedroom ThreeDouble glazed windows to rear, laminate flooring, radiator
BathroomDouble glazed windows to front, panelled bath, built in electric shower, shower screen, wash hand basin in vanity unit, low flush wc, tiled flooring, radiator
