Property Description
Immaculately presented first floor period conversion flat offered chain free with two double bedrooms, leasehold, direct access to a private garden, ample storage and access to loft set within a highly desirable location on the prestigious Thorpe Conservation area.
Excellently located for Sydenham Station, local high street shops and amenities, the award winning Mayow Park, Crystal Palace Park and Wells Park
- Period conversion
- Direct access to a private garden
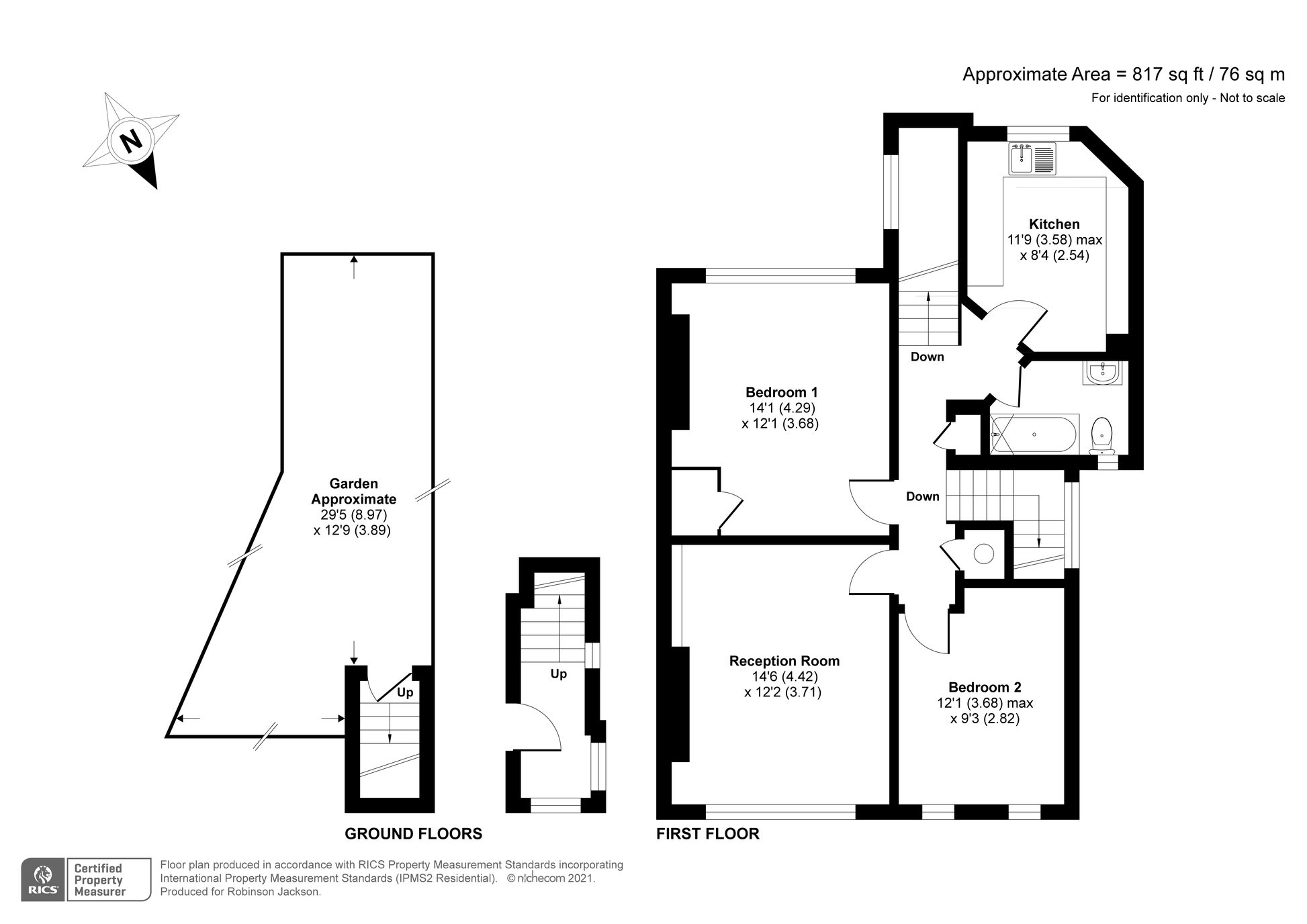
- Total floor area 67sqm
- Ample storage
- Refurbished throughout in 2021
- No chain
- Set within the prestigious Thorpes conservation area
- Well located for Sydenham station, shops, the award winning Mayow Park, Wells Park and Crystal Palace Park
Rooms
Communal EntranceGlazed communal entrance door, carpet, window to side.
Entrance HallEntrance door, double glazed windows to side and front, radiator, two storage cupboards, carpet.
LoungeDouble glazed window to front, radiator, original style cast iron feature fireplace with tiled insert, fitted storage and shelving in alcoves, carpet.
KitchenDouble glazed window to rear, range of fitted white base units with Beech work surface over, one and a half bowl white sink unit with mixer tap, integrated fridge/freezer and dishwasher, space for gas cooker, cupboard housing wall mounted boiler, tiled splash back, extractor fan, tiled effect vinyl flooring.
Bedroom OneDouble glazed window to rear, radiator, built in cupboard and dresser, carpet.
Bedroom TwoTwo double glazed windows to front, radiator, carpet.
BathroomDouble glazed window to front, radiator, three piece bathroom suite comprising of: panelled bath with mixer tap and shower attachment, pedestal wash hand basin with separate taps and low level wc, part tiled walls, tiled flooring,
GardenPaved, gravel, flower bed, rear access.
