Property Description
Spacious Victorian end of terrace house located in a quiet road.
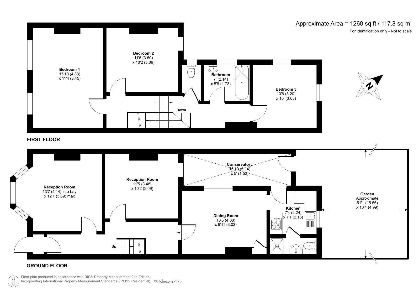
Benefitting from 3/4 double bedrooms, 2/3 reception rooms, two bathrooms, 16' lean to, rear garden and being sold with no onward chain.
Within walking distance of Sydenham and Lower Sydenham stations and Bell Green shopping centre. Well located for the award winning Mayow Park and Alexandra recreation ground.
- End of terrace
- Total floor area 124sqm
- 2/3 Reception rooms
- 3/4 double Bedrooms
- Rear garden
- Side access
- In need of modernisation throughout
- Two bathrooms
- 16' Lean to
- No chain
- Within walking distance of Bell Green shopping centre and Lower Sydenham station
- Well located for the award winning Mayow Park and Alexandra recreation ground
Rooms
Entrance PorchGlazed wooden door to front, tiled flooring.
Entrance HallWooden entrance door, radiator, understairs storage cupboard, carpet.
LoungeDouble glazed bay window to front, radiator, carpet, textured ceiling.
Reception Room/Bedroom FourDouble glazed window to rear, radiator, fitted storage in alcove, carpet, textured ceiling.
Dining RoomDouble glazed window to side, radiator, fitted cupboard in alcove, carpet, arched entrance to kitchen.
KitchenDouble glazed window to rear, range of wall and base units with work surface over, one bowl stainless steel sink unit with mixer tap, tiled splash back, oven and gas hob to remain, plumbed for washing machine, vinyl flooring, door to lean to, door to ground floor shower room, wood panelled ceiling.
Ground Floor Shower RoomEnclosed shower cubicle with electric power shower over, tiled walls and bi fold door, wall mounted wash hand basin and low level wc, vinyl flooring.
Lean ToPart glazed door to garden.
LandingSky light, carpet, access to loft, textured ceiling.
Bedroom OneTwo double glazed windows to front, radiator, carpet, textured ceiling.
Bedroom TwoDouble glazed window to rear, radiator, carpet, textured ceiling.
Bedroom ThreeDouble glazed windows to side and rear, radiator, cupboard housing water tank, textured ceiling.
BathroomOpaque double glazed window to side, two piece bathroom suite comprising of: panelled bath with mixer tap and shower attachment, pedestal wash hand basin, radiator, vinyl flooring, tiled walls, suspended ceiling.
Separate WcOpaque double glazed window to side, low level wc, vinyl flooring, textured ceiling.
Rear GardenConcrete hardstanding, mainly laid to lawn with shrub borders, side access, patio at rear.
Front GardenBlock paved.
