Property Description
Spacious second floor purpose built flat located in a cul de sac.
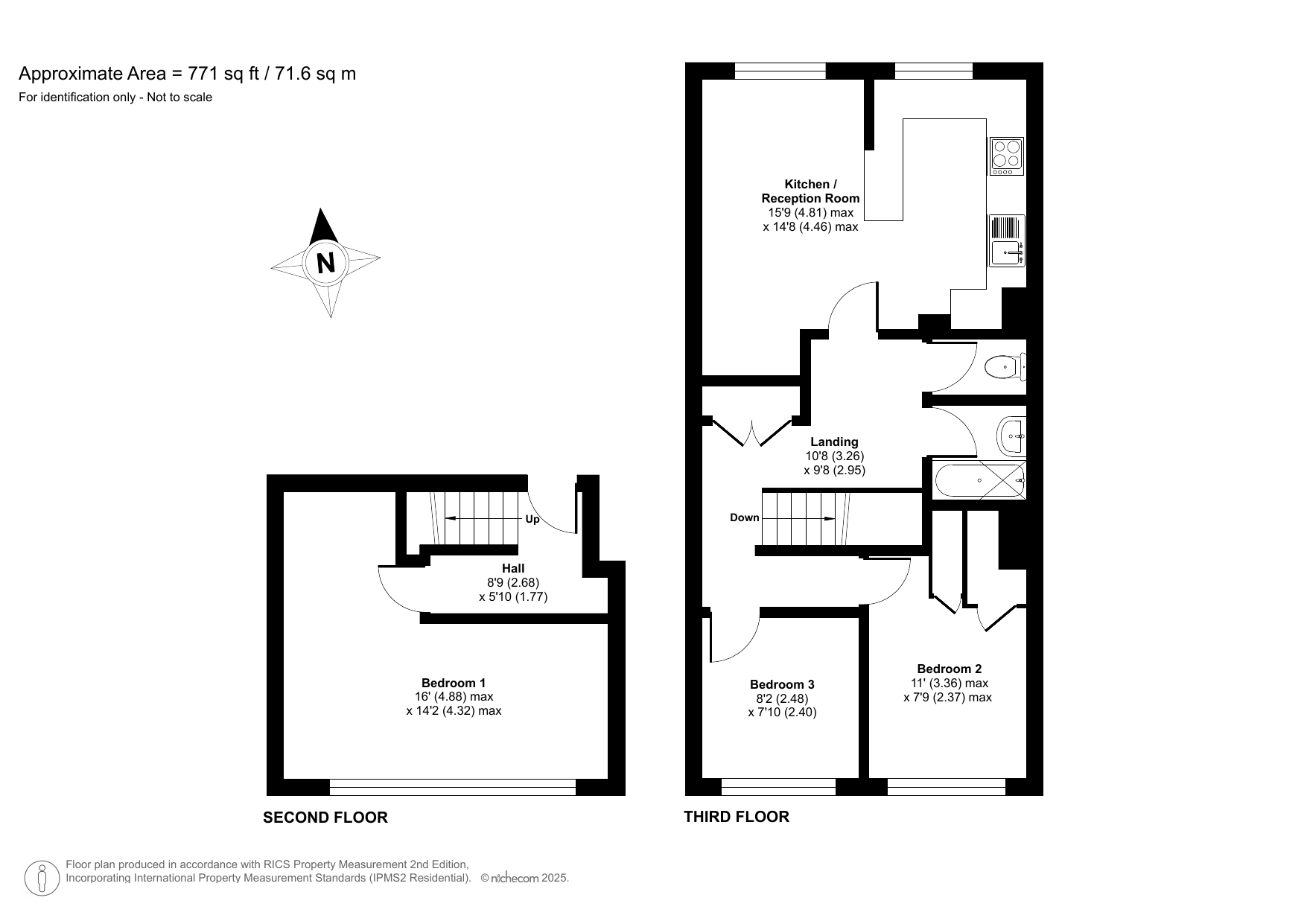
Benefitting from three good sized bedrooms, 15'9 lounge/kitchen, ample storage, modern kitchen and bathroom, overall floor area 72sqm and split level.
Within walking distance of Sydenham high street and station and the award winning Mayow park.
- Second Floor
- Split level
- Cul de sac location
- Three good size bedrooms
- Modern kitchen and bathroom
- Ample storage
- Total floor area 72sqm
- 15'9 Lounge/kitchen
- A short walk from the award winning Mayow Park, Sydenham high street and station
Rooms
Communal EntranceGlazed communal entrance door, stairs to second floor.
Entrance HallEntrance door, laminate flooring, door to bedroom one, stairs to first floor.
Bedroom OneDouble glazed window to front, radiator, laminate flooring.
Lounge/KitchenLounge: Double glazed window to rear, radiator, laminate flooring. Kitchen: Double glazed window to rear, range of high gloss grey fitted wall and base units with work surface over, one bowl stainless steel sink unit with mixer tap, oven, gas hob and extractor fan to remain, plumbing for washing machine, space for fridge/freezer, breakfast bar, tiled flooring.
LandingStorage cupboard, laminate flooring.
Bedroom TwoDouble glazed window to front, radiator, built in wardrobe, storage cupboard, laminate flooring.
Bedroom ThreeDouble glazed window to front, radiator, laminate flooring.
BathroomHeated towel rail, two piece bathroom suite comprising of: panelled bath with mixer tap and shower attachment, inset wash hand basin with mixer tap and vanity unit under, tiled flooring, tiled walls, extractor fan.
Separate WcLow level wc., tiled flooring.
