Property Description
Charming fourth floor modern purpose built RETIREMENT flat offered chain free with one double bedroom, open plan living area, residents parking, lovely landscaped communal garden, double glazing, ample storage, entry phone, 24 hour emergency call system, communal lounge, communal laundry, lift access, minimum age (single) 60 (couple) 60 & 55 and on site manager set within a highly desirable location, Sydenham Station, conveniently located for local high street shops and amenities and Sydenham Hill Wood & Cox 's Walk
- Retirement flat
- Top Floor
- Long lease
- Open plan living area
- Lift access
- Communal lounge
- Landscaped communal garden
- Parking
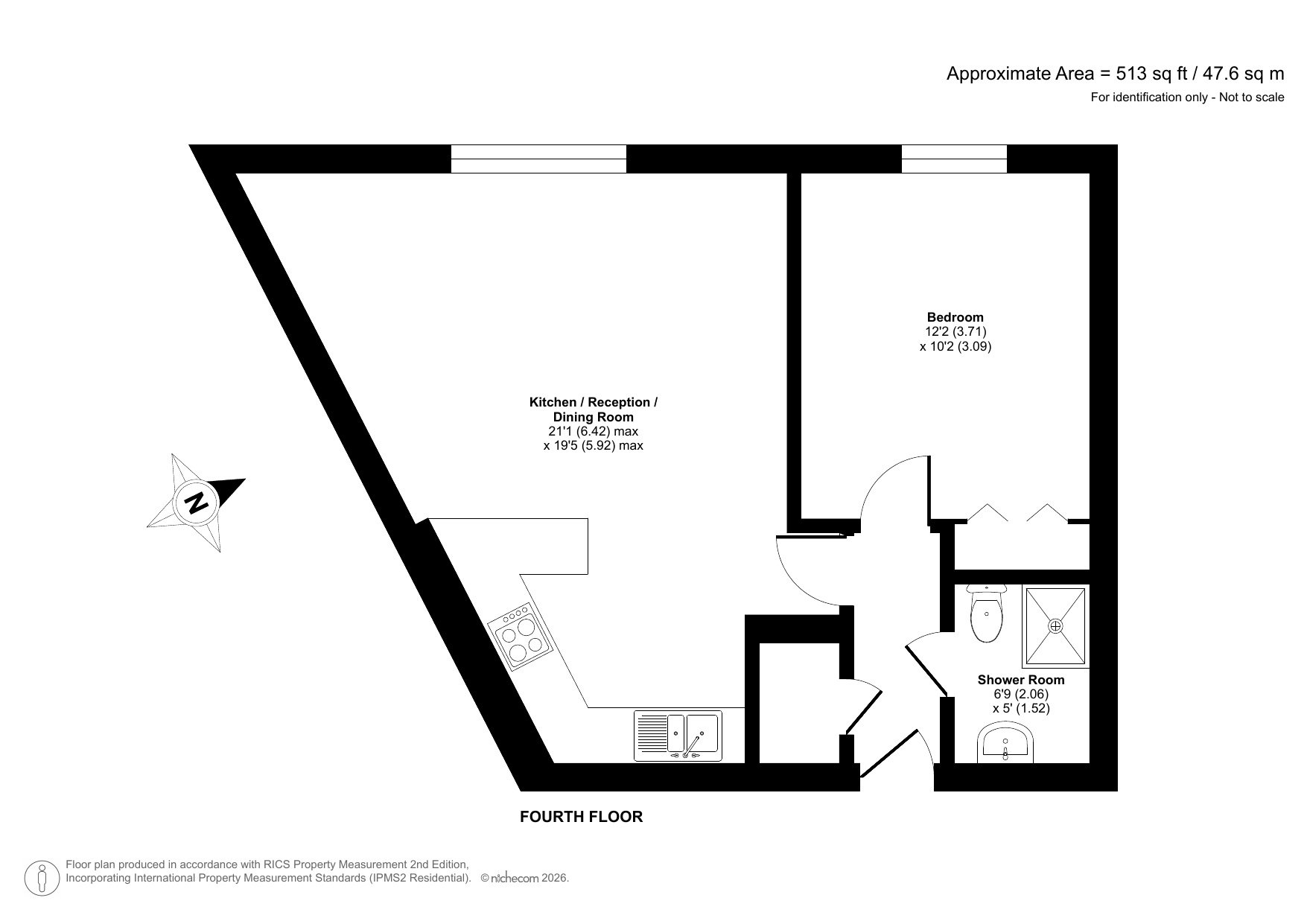
- Total floor area 55sqm
- No chain
- Well located for Sydenham high street and station
- Within walking distance of Wells Park and the award winning Mayow Park
Rooms
Communal EntranceGlazed wooden entrance doors, communal lounge, lift and stairs to fourth floor, carpet.
Entrance HallWooden entrance door, storage cupboard, carpet.
Open Plan Living AreaLounge: Double glazed window to rear, wall mounted electric heater, laminate flooring, coved ceiling. Kitchen: range of fitted high gloss white wall and base units with work surface over, one and a half bowl stainless steel sink unit with mixer tap, oven, hob and extractor fan to remain, breakfast bar, laminate flooring, coved ceiling.
BedroomDouble glazed window to rear, wall mounted electric heater, built in wardrobe, carpet, coved and textured ceiling.
Shower RoomThree piece suite comprising of: enclosed shower cubicle with tiled walls, electric power shower over and sliding door, inset wash hand basin with mixer tap and vanity unit under, low level wc, vinyl flooring, tiled walls, coved and textured ceiling, extractor fan.
Communal GardenLandscaped gardens with mature shrub borders, seating areas and mainly laid to lawn.
Parkingresidents parking.
Laundry Room
