Property Description
Fantastic third floor period conversion flat with one double bedroom, long lease, pleasant communal garden, ample storage and entry phone set within a sought after location, ideal for Sydenham Station, local high street shops and amenities and Crystal Palace Park
- One Double Bedroom
- Period Conversion Flat
- Leasehold
- Third Floor
- Pleasant Communal Garden
- Ample Storage
- Ideal for Sydenham Station, local high street shops and amenities and Crystal Palace Park
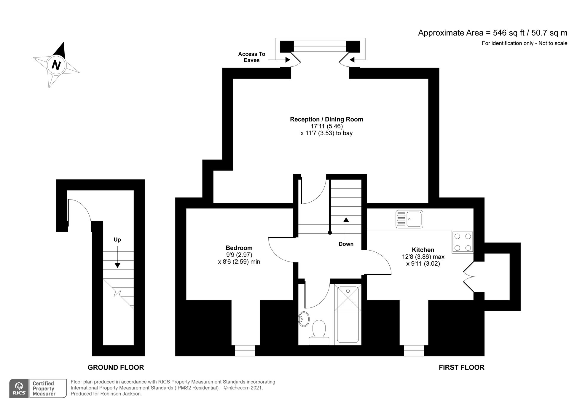
Rooms
Communal Entrance Entrance HallCarpet
LoungeDouble glazed window to front, built in cupboard, carpet, radiator
KitchenDouble glazed window to rear, range of gloss wall and base units, wood block work surface, stainless steel sink unit with drainer, space for cooker, fridge/freezer and washing machine, tiled flooring, radiator
BedroomDouble glazed window to rear, carpet, radiator
BathroomDouble glazed window to rear, panelled bath, built in gas shower, rainfall shower head, shower screen, mixer tap and shower attachment, wall mounted wash hand basin in vanity unit, low flush WC, tiled flooring, heated towel rail, shaver/dryer power point
