Property Description
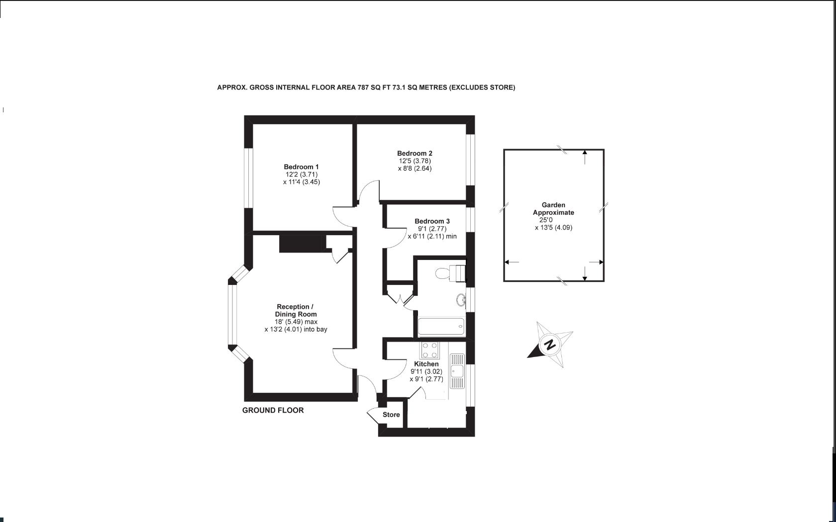
Ready to move straight into, this attractive and well-presented purpose-built flat is offered chain free and provides generous living space throughout. The property features three bedrooms, double glazing, an entry phone system, and a private section of garden—perfect for relaxing or entertaining.
Situated in a popular location, the flat is ideal for those seeking the convenience of being close to local shops, amenities, and excellent transport links. Penge West Station is just a short walk away, offering easy connections for commuters, while a range of supermarkets, cafes, and everyday essentials are within easy reach.
Green spaces including Alexandra Recreation Ground and the beautiful Crystal Palace Park are nearby, providing plenty of outdoor leisure options.
- Three Bedrooms
- Modern Purpose Built Flat
- Chain Free
- Leasehold
- Private Section of Garden
- Double Glazing
- Entry Phone
- Contemporary Designed
- Ideal for Penge West Station
- Conveniently located for local high street shops and amenities, Alexandra Recreation Ground and Crystal Palace Park
Rooms
Communal Entrance LoungeDouble glazed window to front, carpet, radiator
Kitchendouble glazed window to rear, range of wall and base units, laminate work surface, integrated oven, induction hob and extractor, integrated fridge/freezer, washing machine plumbed for, tiled flooring, radiator
Master BedroomDouble glazed window to front, carpet, radiator
Bedroom TwoDouble glazed window to rear, carpet, radiator
Bedroom ThreeDouble glazed window to rear, carpet, radiator
Bathroomdouble glazed window to rear, panelled bath, shower screen, wash hand basin, low flush WC, tiled flooring, heated towel rail
