Property Description
**GUIDE PRICE £160,000-£180,000**
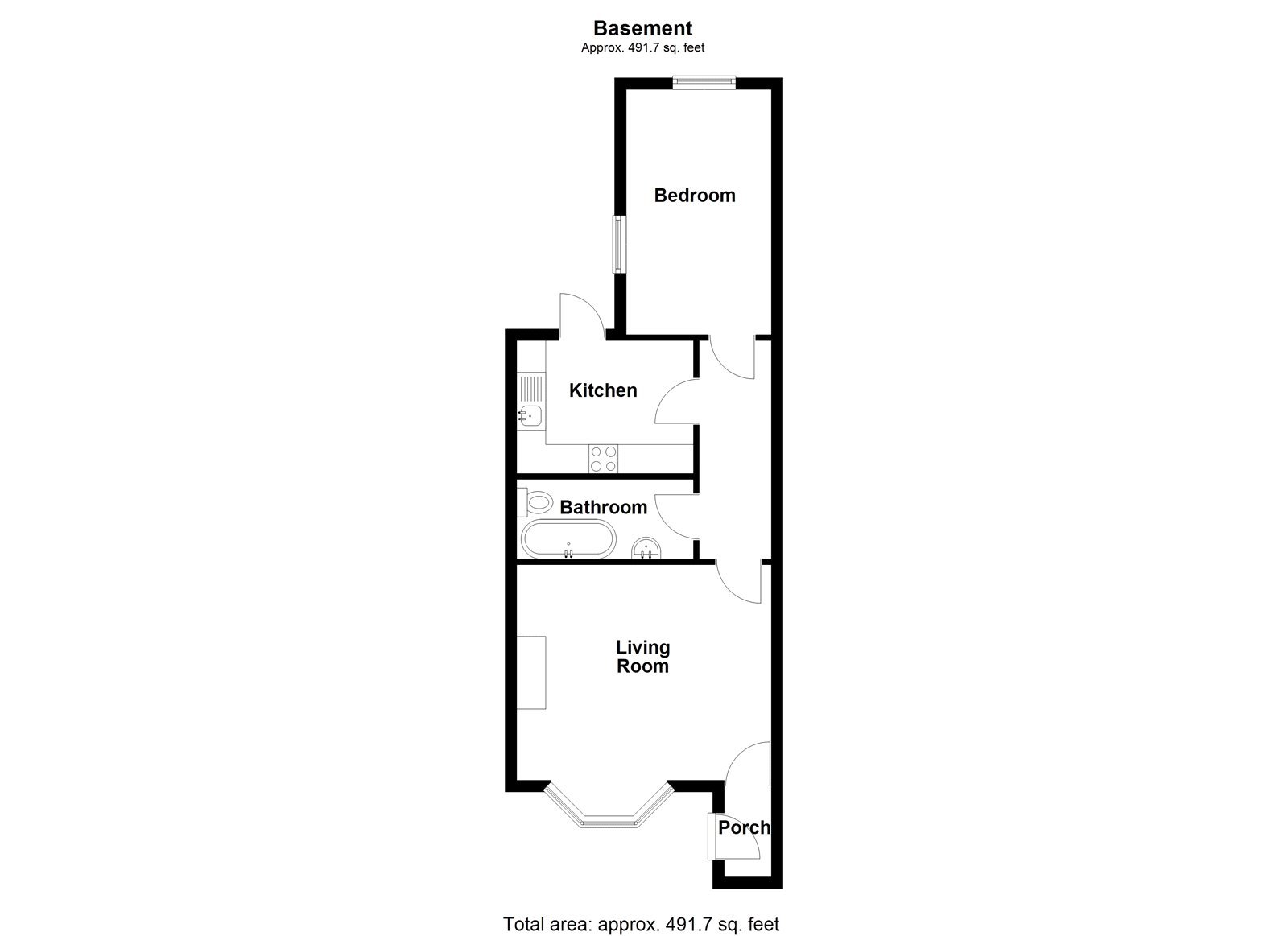
This well-presented 1-bedroom, 1-bathroom flat offers a clean, comfortable, and practical living space, ideally located in Ordnance Terrace, Chatham. Well maintained throughout, the property is perfectly suited to first-time buyers, commuters, or investors looking for a property with excellent transport connections and local amenities close by.
Perfectly positioned for convenience, the flat is just moments from Chatham train station, offering excellent rail links to London and beyond. The town centre and High Street are only a short walk away, providing easy access to shops, restaurants, and local amenities. Residents benefit from permit parking, adding further practicality to this superb location.
- Nearby To Local Amenities.
- 3 Minute Walk to Chatham Train Station
- Great Option For First Time Buyers Or Investors Alike.
- Permit Parking Available.
- Private Garden
- NO CHAIN
- £900 Rental Income Per Month
