Property Description
This first-floor apartment occupies a prime position within the prestigious St. Andrews Park development in Barming, Maidstone, a highly sought-after location known for its peaceful, well-maintained surroundings.
Benefiting from an enviable position, the property is just a 5-minute walk from Maidstone Hospital, within easy reach of Barming Rail Station for commuter links, offers straightforward access to the M20 motorway, and is only a short drive from Maidstone Town Centre with its extensive amenities, shops, and leisure facilities.
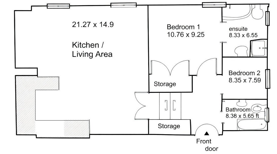
Internally, the apartment presents generously proportioned accommodation with high ceilings throughout, creating a bright and airy feel. The highlight is the spacious open-plan kitchen/living area (measuring approximately 21.27 ft x 14.9 ft), ideal for modern living and entertaining.
Accommodation comprises two well-sized bedrooms, with the principal Bedroom 1 benefiting from an en-suite shower room and integrated wardrobe space. Bedroom 2 is complemented by a separate family bathroom.
Additional practical features include useful storage areas and an allocated parking space.
Offered for sale with no onward chain, this apartment represents an excellent opportunity for first-time buyers, professionals, or investors seeking convenience and quality in a desirable development.
- Two bedrooms
- High ceilings throughout
- Open plan kitchen / living room
- Master bedroom with en-suite & wardrobe
- Allocated parking space
- No chain
- Long lease
- Beautiful maintained communal grounds
