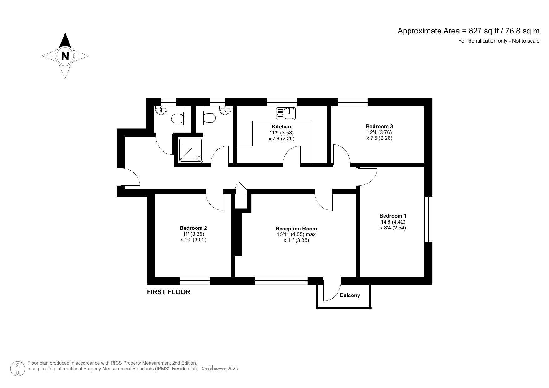
Property Description
Recently refurbished throughout is this spacious three bedroom purpose built flat.
Benefitting from three good sized bedrooms, ample storage, 15' lounge, 11'9 kitchen, balcony, and residents parking.
Set within a sought after location, ideal for Sydenham Hill Station, conveniently located for local independent shops, eateries and bars, Sydenham Hill Wood & Cox 's Walk and Horniman Museum & Gardens
- Recently refurbished
- Purpose built
- Entry phone
- First floor
- Ample storage
- 15' lounge
- Balcony
- Ideal for Sydenham Hill Station
Rooms
Communal EntranceGlazed communal entrance door, stairs to first floor.
Entrance HallWooden entrance door, radiator, three built in cupboards, entry phone, laminate flooring, spotlights.
Lounge/DinerDouble glazed window to side, double glazed door to balcony, radiator, laminate flooring.
KitchenDouble glazed window to side, range of fitted wall and base units with work surface over, one bowl stainless steel sink unit with mixer tap, oven, gas hob and extractor fan to remain, plumbing for washing machine, space for fridge, tiled splash back, tiled flooring.
Bedroom OneDouble glazed window to rear, radiator, laminate flooring.
Bedroom TwoDouble glazed window to side, radiator, laminate flooring.
Bedroom ThreeDouble glazed window to side, radiator, laminate flooring.
Shower RoomOpaque double glazed window to side, heated towel rail, enclosed corner shower cubicle with tiled walls and mixer shower over, inset wash hand basin with mixer tap and vanity unit under, enclosed low level wc, tiled flooring, tiled walls, extractor fan.
Separate WcOpaque double glazed window to side, wall mounted wash hand basin with mixer tap and vanity unit under, enclosed low level wc, tiled flooring, tiled walls.
BalconyFar reaching views.
Residents Parking
