Property Description
Bright and airy first floor purpose built flat located in a Cul de sac, ideal for a first time buyer.
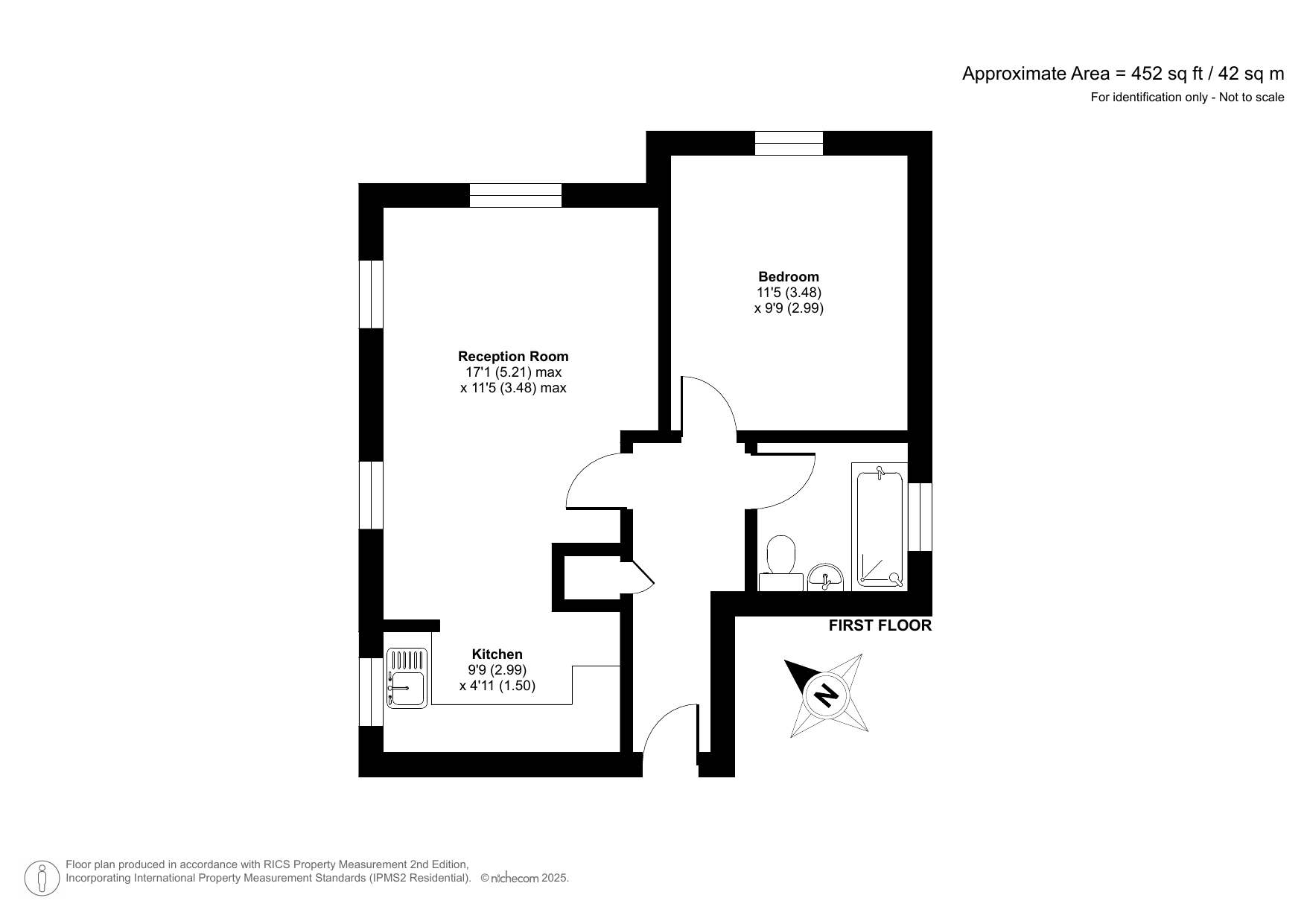
Benefitting from 17' lounge, 11' bedroom, modern kitchen and bathroom, overall floor area 42sqm, allocated parking space and being sold with no onward chain.
Within walking distance of Penge East station and well located for Alexandra park, Sydenham high street and station.
- First floor purpose built flat
- 17' lounge
- 11' Bedroom
- Allocated parking space
- Total floor area 42sqm
- Cul de sac location
- No chain
- Within a short walk of Penge East station
- Well located for Alexandra park, Sydenham high street and station
Rooms
Communal EntranceGlazed communal entrance, carpet, stairs to first floor.
Entrance HallWooden entrance door, storage heater, storage cupboard, entryphone, carpet, textured ceiling.
LoungeTwo double glazed windows to front, double glazed window to side, storage heater, carpet, textured ceiling, open to kitchen.
KitchenDouble glazed window to front, range of fitted white wall and base units with work surface over, one bowl stainless steel sink unit with separate taps, space for electric cooker, plumbing for washing machine, space for fridge/freezer, tiled splash back, vinyl tiled flooring, textured ceiling.
BedroomDouble glazed window to side, storage heater, carpet, textured ceiling.
BathroomOpaque double glazed window to rear, wall mounted electric towel rail, three piece bathroom suite comprising of: tiled panelled bath with mixer tap and shower attachment, inset wash hand basin with mixer tap and vanity unit under and enclosed low level wc, tiled flooring, tiled walls, extractor fan, textured ceiling.
Allocated ParkingParking space.
