Property Description
*** Guide Price £280,000-£300,000 ***
Well presented first floor flat set within an attractive period building.
Benefitting from one double bedroom, 12' lounge, modern kitchen, double glazing and gas central heating, long lease and being sold with no onward chain.
Set within a quiet tree lined road and within easy access of Penge East and Sydenham stations, Sydenham and Penge high streets. Within walking distance of Alexandra Park and Crystal Palace Park.
- Attractive period conversion
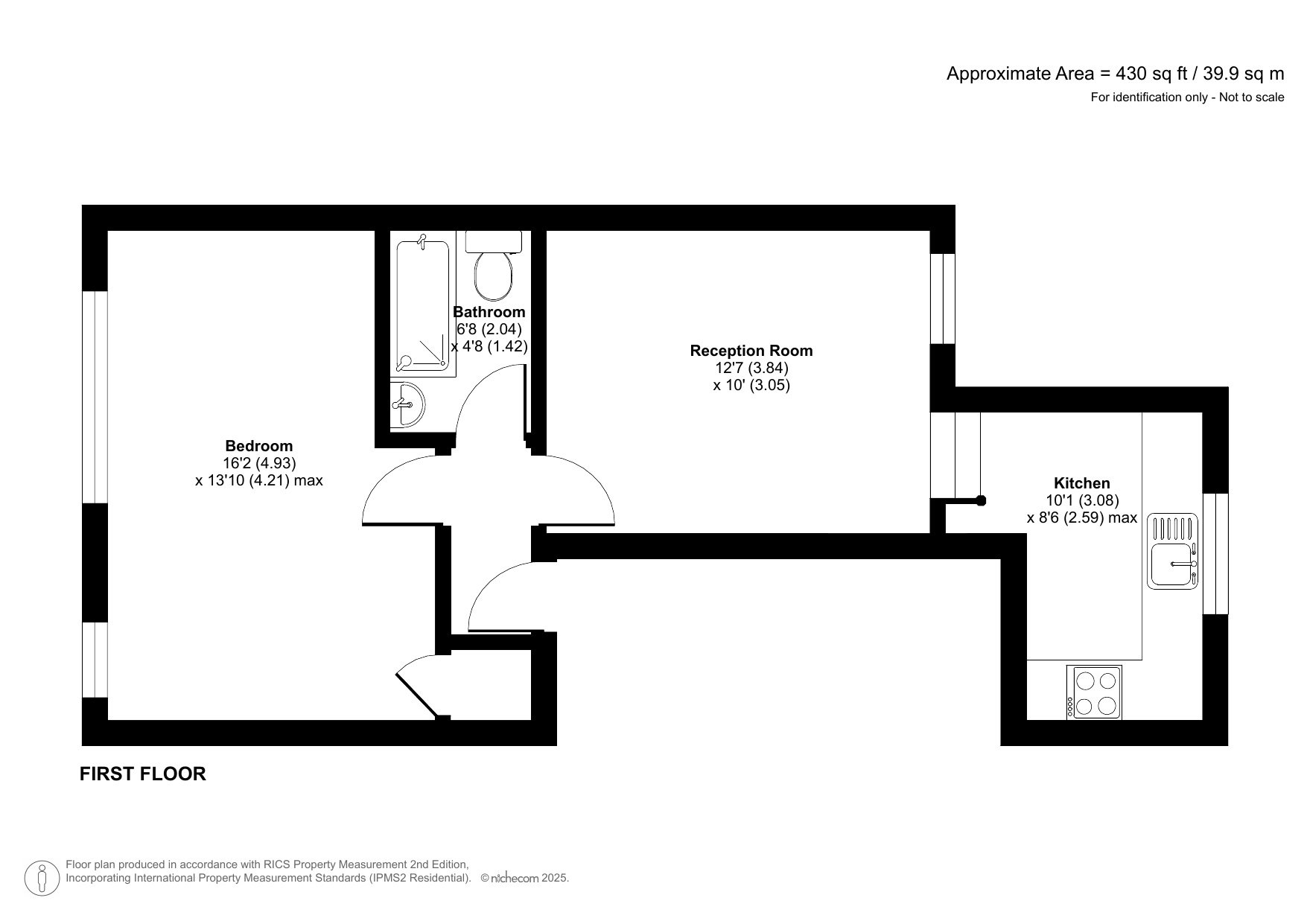
- Total floor area 40 sqm
- 16' Master bedroom
- Modern kitchen
- 12' Lounge
- No chain
- Long lease
- Within easy access of Penge East & Sydenham stations
- Within walking distance of Alexandra Park and Crystal Palace Park
Rooms
Communal EntrancePart opaque glazed wooden entrance door, carpet, stairs to first floor.
Entrance HallWooden entrance door, carpet, coved and textured ceiling.
LoungeDouble glazed window to rear, radiator, carpet, entrance to kitchen, coved and textured ceiling.
KitchenDouble glazed window to rear, radiator, range of fitted wall and base units with work surface over, one bowl stainless steel sink unit with mixer tap, oven, gas hob and extractor fan to remain, tiled splash back, wall mounted boiler, plumbing for washing machine, space for fridge freezer, laminate flooring, coved and textured ceiling.
BedroomTwo double glazed windows to front, radiator, carpet, coved and textured ceiling.
BathroomThree piece bathroom suite comprising of: wood panelled bath with mixer tap and shower attachment, pedestal wash hand basin and low level wc, radiator, tiled flooring, tiled walls, extractor fan, coved and textured ceiling.
