Property Description
*** Guide Price £240,000-£260,000 ***
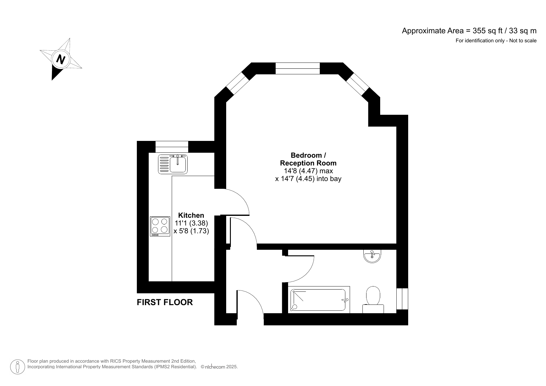
First floor studio flat set within an attractive period building.
Benefitting from far reaching views over Crystal Palace Park, 14' lounge/bedroom area, 999 year lease, separate kitchen and bathroom being sold with no onward chain.
Well located for Sydenham station and high street and within a short walk of Crystal Place Park.
- Period Studio Flat
- Overlooking Crystal Palace Park
- First Floor
- Entry Phone
- No chain
- 14' Lounge/bedroom area
- Attractive Period Building
- Excellently located for Sydenham Station
- Conveniently located for Sydenham High Street and Crystal Palace Park
Rooms
Communal EntranceWooden communal entrance door, carpet, stairs to first floor.
Entrance HallWooden entrance door, carpet.
Lounge/Bedroom AreaBay sash window to rear, radiator, carpet, access to kitchen.
KitchenSash window to rear, radiator, range of fitted wall and base units with work surface over, one bowl stainless steel sink unit with mixer tap, tiled splash back, oven, hob and extractor to remain, space for fridge, plumbing for washing machine, wall mounted boiler, laminate flooring.
BathroomOpaque sash window to side, radiator, three piece bathroom suite comprising of: panelled bath mixer tap and mixer shower over, inset wash hand basin with mixer tap and vanity unit under, low level wc, part tiled walls, vinyl flooring.
Communal GardenMainly laid to lawn with mature shrubs.
