Property Description
Guide Price £850,000 - £900,000
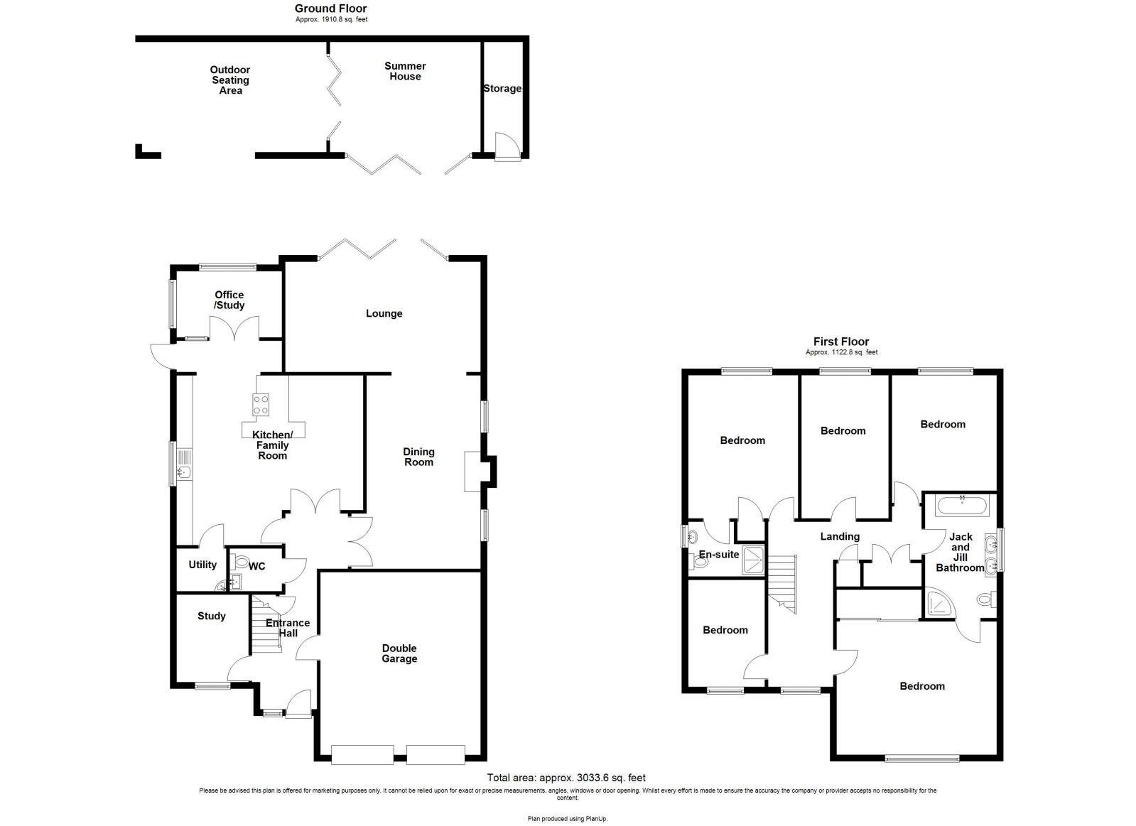
Situated on the highly desirable Asquith Road, this impressive five-bedroom detached home offers approximately 2,841 sq ft of beautifully presented and versatile accommodation, ideal for modern family living. Offered for sale with no onward chain, the property provides a rare opportunity for a smooth and swift purchase.
At the heart of the home is a stunning open-plan kitchen and family room, thoughtfully designed to create a bright and sociable space perfect for both everyday living and entertaining. The property further benefits from a luxurious modern en-suite shower room to Bedroom Two, alongside an elegant Jack-and-Jill bathroom serving additional bedrooms.
Externally, the garden features a superb fully powered and lit outbuilding, offering excellent flexibility as a home office, gym, or studio—ideal for today’s lifestyle needs.
Additional benefits include energy-efficient solar panels, helping to reduce utility costs while supporting a more sustainable way of living.
This exceptional home combines space, style, and practicality in a prime location, making it an outstanding choice for families seeking both comfort and convenience.
Presenting this immaculate 5-bedroom detached house located in a serene setting, boasting a spacious layout ideal for modern family living. The property features a well-maintained large rear garden, perfect for outdoor activities and al fresco dining. Enjoy the convenience of off-street parking and a double garage for ample storage. With no onward chain, this property is ready for its new owners to move in. Don't miss out on the opportunity to make this cosy retreat your own. Contact us today to schedule a viewing and secure your dream home.
- Approx.2841.1 sq ft of accommodation
- Energy-Efficient Solar Panels Reducing Utility Costs and Environmental Impact
- 18.8kw of battery storage and air source heat pump
- Offered for sale with no onward chain
- Stunning Open-Plan Kitchen & Family Room
- Garden room: Fully powered and lit outbuilding, ideal for use as a home office, gym or studio.
- Modern En-Suite Shower Room and Elegant Jack-and-Jill Bathroom
- Early Viewing Highly Recommended
Rooms
Entrance Hall 6.12m x 0.79mDoor to front. Stairs to first floor. Tiled flooring.
Study 2.74m x 2.25mDouble glazed window to side and rear. Tiled flooring.
CloakroomLow level WC. Vanity wash hand basin. Tiled flooring.
Utility Room 5.6 x 1.32mSpace for washing machine and tumble dryer.
Kitchen/Family Room 5.83m x 5.3mDouble glazed window to side. Range of wall and base units with Quartz worktop over. Wine cooler. Double AEG oven with heated drawer. Integrated microwave. Island with AEG induction hob with extractor fan. Breakfast bar.. Tiled flooring. Radiator and under floor heating.
Reception Room/Study 3.29m x 2.07mSet up as Salon Room. Double glazed window to front. Tiled flooring. Radiator.
Living Room 6.10m x 3.45mDouble glazed Bi folding doors to rear. Carpet. Two radiators.
Dining Room 6.04m x 2mTwo double glazed window to side. Carpet. Radiator.
Landing 5.16m x 3.86mDouble glazed window to front. Storage cupboard. Loft access, boarded loft NO ladder.
Bedroom One 5.01m x 4.17mDouble glazed window to front. Fitted wardrobes. Carpet. Radiator.
Bedroom Two 4.47m x 3.43mDouble glazed window to rear. Fitted storage cupboard. Carpet. Radiator.
Ensuite Shower Room 2.29m x 1.65mDouble glazed window to side. Low level WC. Wash hand basin. Enclosed shower. Tiled flooring. Radiator.
Bedroom Three 4.47m x 2.72mDouble glazed window to rear. Carpet. Radiator.
Bedroom Four 3.61m x 3.28mDouble glazed window to rear. Carpet. Radiator.
Bedroom Five 3.34m x 2.39mDouble glazed window to front. Laminate flooring. Radiator.
Jack and Jill Bathroom 3.88m x 2.25mDouble glazed window to side. Low level WC. His and hers wash hand basin. Shower and bath. Tiled flooring.
GardenSide pedestrian access. Fenced in. Patio. Artificial lawn. Outside tap.
Summer House 4.71m x 3.45mDouble glazed Bi Folding doors to front and side. Power, lighting and internet. Range of base units. Laminate flooring. Outside bar area to side.
Double Garage 5.71m x 5.01mTwo up and over doors. Power and lighting.
ParkingDriveway to front of garages.
