Property Description
*** Guide Price £525,000-£550,000 ***
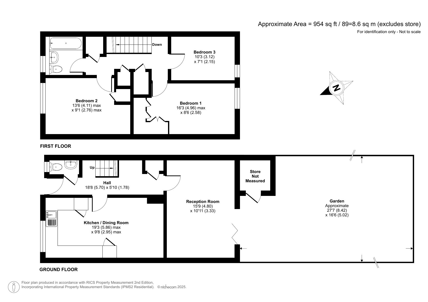
Well presented three bedroom terraced house located in a quiet cul de sac.
Benefitting from three good sized bedrooms, 15' lounge overlooking the rear garden, 19' kitchen/diner, modern first floor bathroom and ground floor wc front and rear garden.
Within a short walk of Wells Park and Crystal Palace Park and well located for Sydenham station and high street. Sydenham hill station is a 15 minute walk with links to Victoria and Blackfriars.
- Cul de sac location
- Three good sized bedrooms
- Ample storage
- Front & rear garden
- Total floor area 89sqm
- 19' Kitchen/diner
- 15' Lounge
- Modern first floor bathroom & ground floor wc
- Within walking distance of Wells Park & Crystal palace Park
- Well located for Sydenham station and high street
Rooms
Entrance HallPart opaque double glazed UPVC entrance door, radiator with cover, understairs storage cupboard, herringbone oak flooring, textured ceiling.
Ground Floor WCOpaque double glazed window to front, wall mounted wash hand basin with mixer tap, low level wc, herringbone oak flooring, tiled walls, textured ceiling.
Living RoomDouble glazed bi fold doors to garden, radiator with cover, herringbone oak flooring.
Kitchen/DinerDouble glazed window to front, range of fitted high gloss wall and base units with work surface over, one and a half bowl stainless steel sink unit with mixer tap, oven, gas hob and extractor fan to remain, integrated microwave, fridge/freezer, washing machine and dishwasher, cupboard housing wall mounted boiler, tiled splash back, tiled flooring, textured ceiling. Diner- Radiator with cover, tiled flooring, dado rail, textured ceiling.
LandingThree storage cupboards, access to loft, carpet, textured ceiling.
Bedroom OneDouble glazed window to front, radiator, built in wardrobe, carpet, textured ceiling.
Bedroom TwoDouble glazed window to rear, radiator, fitted wardrobes, carpet, textured ceiling.
Bedroom ThreeDouble glazed window to rear, radiator, carpet, textured ceiling.
BathroomOpaque double glazed window to front, heated towel rail, three piece bathroom suite comprising of: panelled bath with mixer tap and shower attachment, pedestal wash hand basin with mixer tap, low level wc, tiled flooring, part tiled walls.
Front GardenPath, brick built bin storage, mainly shingle with flowers.
Rear GardenPatio, brick built storage cupboard, astro turf with flower border.
