Property Description
Spacious and well presented end of terrace family home located in a private cul de sac.
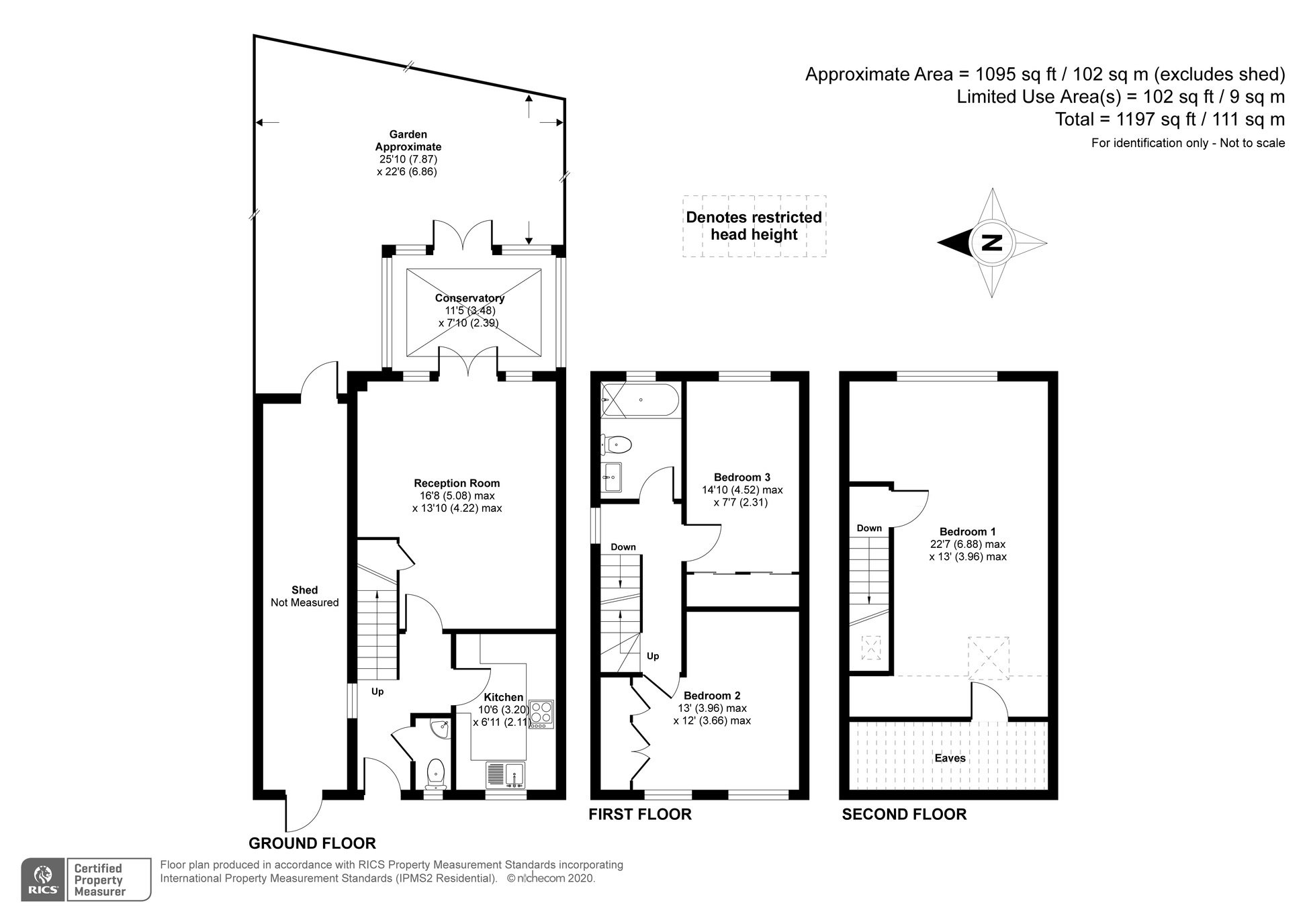
Benefitting from allocated parking space, pleasant secluded garden, conservatory, lovely views, modern kitchen and bathroom and overall floor area of 96sqm.
set in the prestigious and sought after Lawrie Park Triangle, moments away from Sydenham Station and High Street
- Three Double Bedrooms
- Overall floor area 96sqm
- Modern first floor bathroom & ground floor wc
- Wood Flooring
- Allocated Parking Space
- Pleasant Secluded Garden
- Shed with Power and Light
- Private Development
- Cul-De-Sac Location
- Prestigious Lawrie Park Triangle
- Moments from Sydenham Station and High Street
Rooms
Entrance HallOpaque double glazed UPVC entrance door, double glazed window to side, radiator, wood flooring, coved and textured ceiling.
Ground Floor WCOpaque double glazed window to front, inset corner wash hand basin with mixer tap and vanity unit under, low level wc. heated towel rail, tiled flooring.
KitchenDouble glazed window to front, range of high gloss white wall and base units with work surface over, one bowl stainless steel sink unit with mixer tap, plumbing for washing machine and dishwasher, oven, gas hob and extractor fan to remain, space for fridge/freezer, tiled walls, wood flooring, coved and textured ceiling.
Living RoomDouble glazed double doors to conservatory, radiator, understairs storage cupboard, fitted shelving, wood flooring, coved ceiling with spotlights.
ConservatoryDouble glazed double doors to garden, double glazed windows to both sides and rear, two radiators, wooden flooring.
LandingDouble glazed window to side, carpet, stairs to loft room.
Bedroom TwoTwo double glazed windows to front, radiator, built in wardrobes, carpet, coved and textured ceiling.
Bedroom ThreeDouble glazed window to rear, radiator, fitted wardrobes, carpet, textured ceiling.
BathroomOpaque double glazede window to rear, heated towel rail, three piece bathroom suite comprising of: panelled bath with mixer tap and mixer shower over, inset wahs hand basin with mixer tap and vanity unit under, enclosed low leve wc, tiled flooring, tiled walls, extractor fan.
Landing (Loft)Velux window to rear, carpet.
Bedroom one (Loft)Double glazed window to rear, velux window to front, radiator, eaves storage, wood flooring, spotlights.
Rear GardenPatio, side access, steps down to mainly laid to lawn area with mature shrub borders, shed.
ParkingOff street parking for one car.
