Property Description
Guide price
£360,000-£380,000
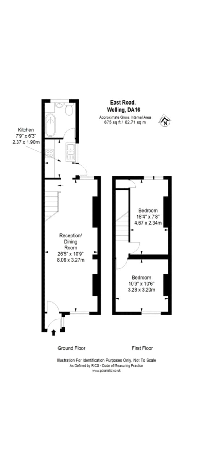
East road
Welcome to this well presented two-bedroom Victorian end-of-terrace home, ideally located within walking distance of the train station, making it perfect for commuters and first-time buyers alike.
As you arrive, you’re welcomed by a useful entrance porch, providing a practical space for coats and shoes before stepping into the main home.
Inside, the property offers modern décor throughout. The living area is bright and well-proportioned, creating a warm and inviting atmosphere.
To the rear, you’ll find a stylish, modern kitchen, thoughtfully designed with sleek units and integrated appliances and ground floor bathroom.
Upstairs, the home continues to impress with two well-sized bedrooms
Being an end-of-terrace, the home benefits from added privacy and natural light, while its convenient location places local amenities, transport links, and shops all within easy reach.
Outside theres a courtyard paved garden with rear pedestrian access.
This is a fantastic opportunity to secure a character home with a modern finish in a highly convenient location. Early viewing is highly recommended.
- 2 Bed End terrace
- Lounge/ diner
- Modern fitted kitchen
- Short walk to train station
- Entrance porch
- Double glazing
Rooms
Porch:Double glazed door to front.
Lounge/Dining Room: 8.05m x 3.28mWooden door to front, double glazed window to front and wood style laminate flooring.
Kitchen: 2.36m x 1.9mFitted with a range of wall and base units with contrasting work surfaces. Integrated double oven, hob and filter hood. Localised tiled walls, tiled flooring, double glazed window to side and double glazed door to side.
Bathroom:Fitted with a three piece suite comprising of pedestal wash hand basin, low level wc and panelled bath with shower over. Part tiled walls, tiled flooring and double glazed window to rear.
Landing:Carpet as fitted.
Bedroom 1: 3.28m x 3.2mDouble glazed window to front and carpet as fitted.
Bedroom 2: 4.67m x 2.34mDouble glazed window to rear and carpet as fitted.
Garden:Paved rear garden. Gate to rear.
