Property Description
Wonderful family home needing some TLC offering fantastic potential. Offered chain free with driveway, garage and garden, located in a sought after road on the prestigious Lawrie Park Triangle, ideal for Sydenham station, Crystal Palace Park, restaurants, bars and shops
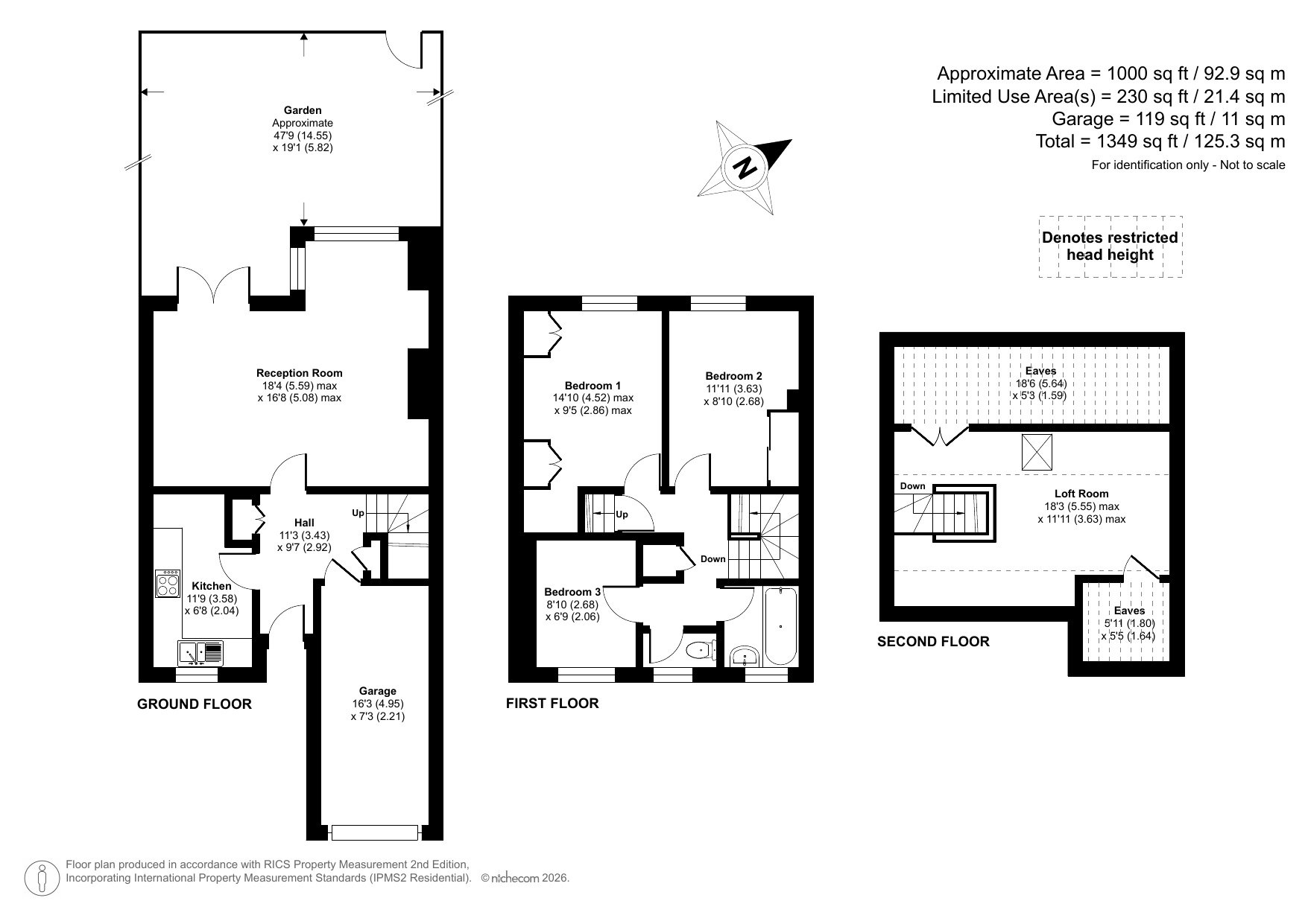
Rooms
Entrance HallTwo cupboards, carpet
Lounge/Dining RoomDouble glazed windows to rear, double glazed french doors to garden, fireplace, carpet with parquet flooring underneath, radiator, spotlights, wall light
KitchenDouble glazed window to front, range of wall and base units, stainless steel sink unit and drainer, dishwasher, space for cooker and fridge/freezer, spotlights
First Floor Landing BedroomDouble glazed window to rear, fitted wardrobes, carpet, radiator
BedroomDouble glazed window to rear, fitted wardrobes, carpet, radiator
BedroomDouble glazed window to front, carpet, radiator
BathroomDouble glazed window to front, panelled bath with mixer tap and shower attachment, pedestal wash hand basin
Separate WCDouble glazed window to front, low flush wc
