Property Description
Guide Price £500,000 - £525,000
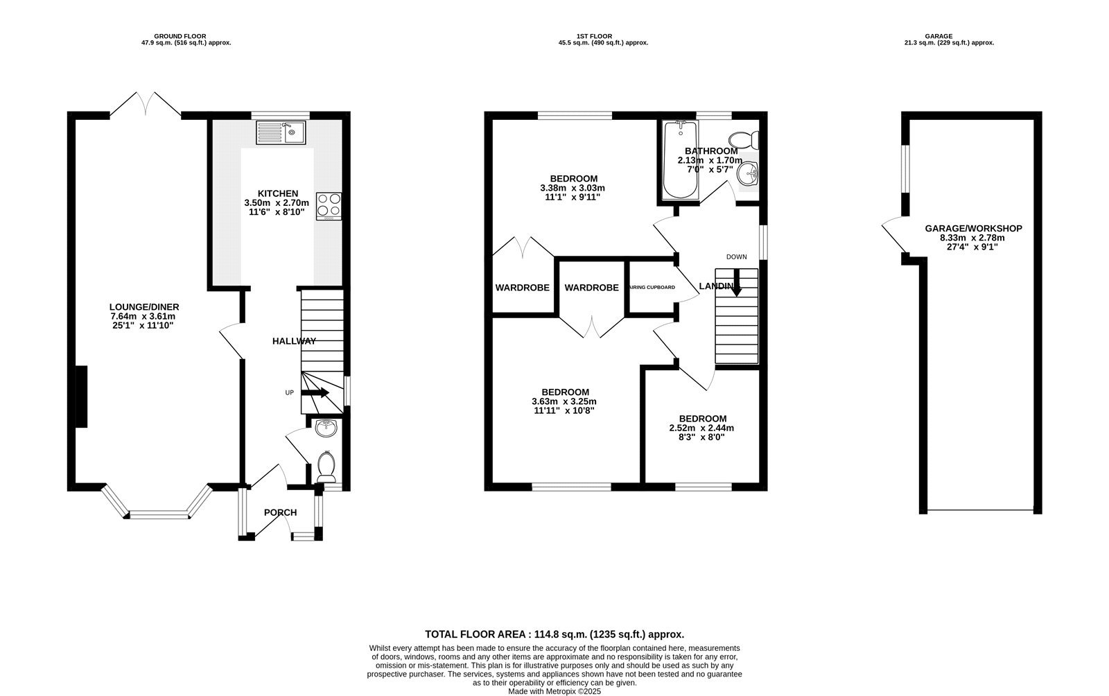
Located in a quiet cul de sac just 0.7 miles from Swanley station which offers swift services to London Bridge, Charing Cross, Victoria and Blackfriars as well as well regarded High Firs Primary School is this impeccably presented detached family home. Having been updated by the current owners to offer exacting attention to detail throughout. Accommodation comprises to the ground floor a bright spacious hallway, cloakroom, beautiful integrated kitchen and 7.65m x 3.63m lounge/dining room. Upstairs are 3 larger than average bedrooms, and a modern bright bathroom. Outside offers a wonderful low maintenance rear garden with power and lighting, garage/workshop and all important private driveway with electric car charging point. If you are looking for a home you simply need to place your furniture, look no further.
- 3 Bedrooms
- Integrated Kitchen
- 7.64m x 3.61m Lounge/Diner
- Ground Floor Cloakroom
- Low Maintenance Rear Garden
- Larger Than Average Garage
- Off Street Parking
- Electric Car Charging
- 0.7 Mile Walk to Station
Rooms
PorchDouble glazed windows to sides. Door to front.
Entrance HallDoble glazed window to side. Provides access to lounge, kitchen, cloakroom and stairs to first floor. Under stairs storage. Radiator.
CloakroomOpaque double glazed window to front. Low level wc. Wash basin.
Lounge/Dining Room 7.64m x 3.61mDouble glazed 'box' bay window to front with Double glazed French doors to rear. Radiators.
LKitchen 3.5m x 2.7mDouble glazed window to rear. Range of matching wall and base cabinets with Quartz countertop over with inset sink/drainer and separately an induction hob. Integrated fridge/freezer, washing machine, oven and microwave. Wine cooler. Under floor heating.
First Floor LandingDouble glazed window to side. Providing access to bedrooms, bathroom and airing cupboard.
Bedroom One 3.63m x 3.25mDouble glazed window to front. Integrated wardrobes. Radiator.
Bedroom Two 3.38m x 3.03mDouble glazed window to rear. Integrated wardrobes. Radiator. Loft access.
Bedroom Three 2.52m x 2.44mDouble glazed window to front. Radiator.
Bathroom 2.13m x 1.7mOpaque double glazed window to rear. Enclosed panelled bath with glass screen and shower over. Vanity wash basin. low level wc. Heated towel rail.
