Property Description
***GUIDE PRICE £500,000 - £525,000***
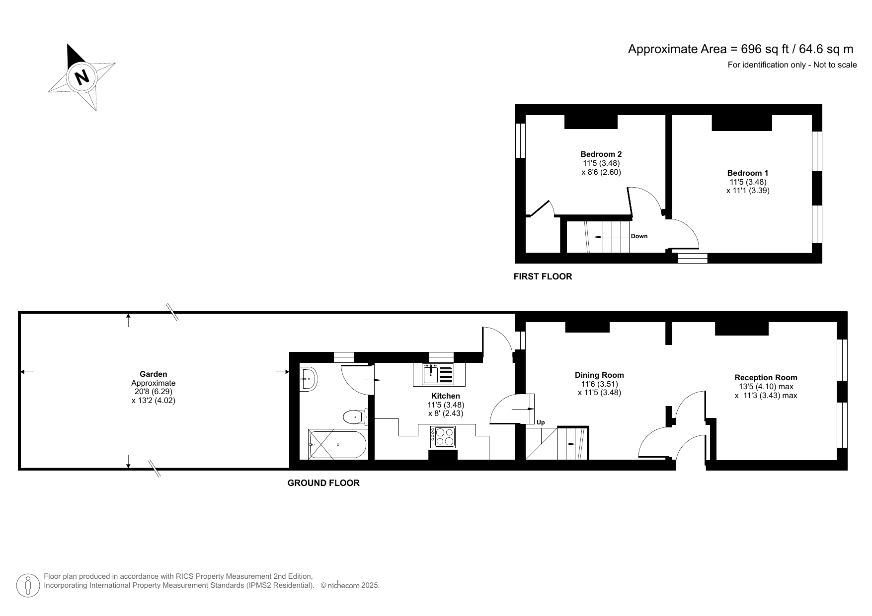
This delightful two double bedroom Victorian terraced house combines period charm with modern comforts. Featuring beautiful original features, wood flooring, and double glazing throughout, the home offers a warm and inviting living space ideal for couples, small families, or professionals.
The property boasts a pleasant rear garden — perfect for relaxing or entertaining — and is situated in a sought-after residential area. Ideally positioned just a short walk from Sydenham Station, local high street shops, and a wide range of amenities, it also benefits from close proximity to the award-winning Mayow Park.
Don't miss the opportunity to view this characterful home in one of SE London's most vibrant communities.
- Two Double Bedrooms
- Victorian Terraced House
- Freehold
- Pleasant Rear Garden
- Double Glazing
- Wood Flooring Where Stated
- Original Features
- Wonderful Family Home
- Ideal for Sydenham Station
- Conveniently located for local high street shops and amenities and the award winning Mayow Park
Rooms
EntranceWood flooring
LoungeDouble glazed window to front, wood flooring, fireplace
Dining RoomDouble window to rear, wood flooring, fireplace
KitchenDouble glazed window and door to side, wall and base units, laminate work surface, stainless steel sink, space for fridge/freezer, space for washing machine, integrated dishwasher, tiled flooring
Bedroom OneDouble glazed window front and side, feature fireplace, carpet, radiator
Bedroom TwoDouble glazed window to rear, feature fireplace, built in cupboard, carpet, radiator
BathroomDouble glazed window to side, panelled bath. shower and shower screen, wash hand basin, in vanity unit, low flush WC, laminate flooring
