Property Description
***GUIDE PRICE £400,000 - £425,000***
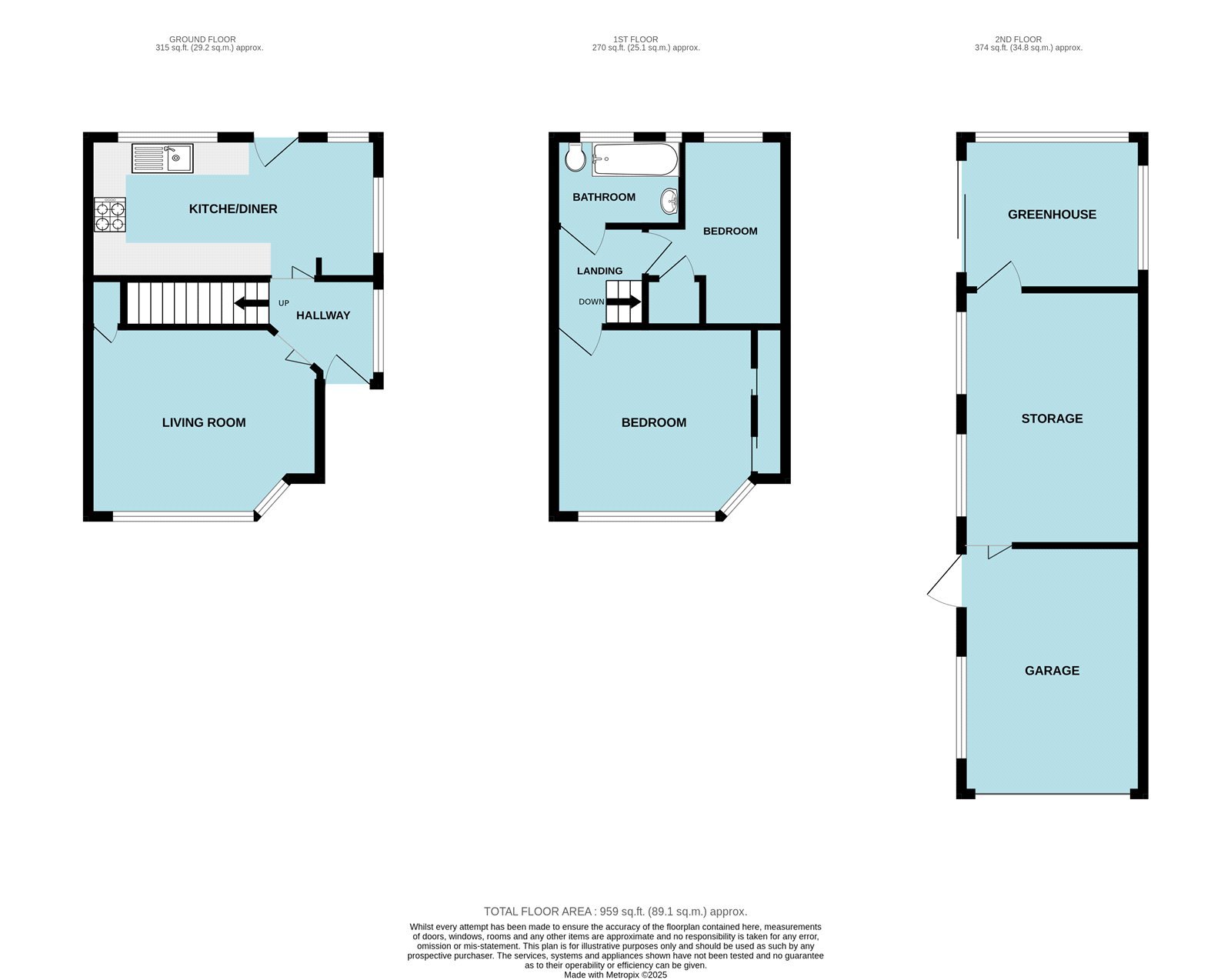
Ideally situated in the heart of Welling, this well-located two-bedroom semi-detached property offers a fantastic opportunity for first-time buyers looking to create a home of their own. Just a short walk from Welling Station and within easy reach of local schools, shops, and amenities, this home combines convenience with potential.
Inside, the property features two well-proportioned bedrooms, a bright and welcoming lounge, and a separate kitchen with access to the garden. The large rear garden offers ample space for outdoor entertaining, gardening, or future extension potential (STPP). Tthe property benefits from a garage and private driveway, providing off-street parking.
This is a wonderful opportunity to put your own stamp on a home in a sought-after location. Whether you're looking to step onto the property ladder or invest in a project with great potential, this Welling gem is not to be missed.
- Chain free
- Driveway
- Sizeable garage
- Enclosed rear garden
- Close to station
- Internal viewing highly recommended
Rooms
Entrance Hall:Wooden door to front and wood style laminate flooring.
Lounge: 3.89m x 3.4mDouble glazed bay window to front and wood style laminate flooring.
Kitchen: 4.93m x 2.74mFitted with a range of wall and base units with contrasting work surfaces. Integrated oven, hob and filter hood. tiled walls, vinyl flooring, double glazed window to rear and wooden door to rear.
Landing:Carpet as fitted.
Bedroom 1: 3.4m x 3.25mDouble glazed bay window to front and carpet as fitted.
Bedroom 2: 2.9m x 1.6mDouble glazed window to rear and wood style laminate flooring.
Bathroom:Fitted with a three piece suite comprising of pedestal wash hand basin, low level wc and panelled bath with shower over and glass shower screen. Tiled walls, tiled flooring and double glazed window to rear.
Garden:Large patio area and laid to lawn.
Garage: 4.3m x 3.15mGarage to rear with up and over door. Door to side.
Storage Room: 4.34m x 3.4mWindows to side.
Workshop: 3.07m x 2.3mPower and light.
Parking:Driveway providing off street parking.
