Property Description
Guide price £450,000 - £475,000
PLANING PERMISSON GRANTED - Situated on the ever-popular Hook Lane in South Welling, this fully refurbished two-bedroom semi-detached home offers stylish and versatile living in a highly convenient location, just a short walk from Welling Station.
Offered for sale with no onward chain. The property boasts two well-proportioned reception rooms, ideal for both relaxing and entertaining, along with an additional room that lends itself perfectly as a home office, study, or dressing room. Finished to a high standard throughout, the home combines modern comforts with practical family living.
A major added benefit is that the property comes with granted planning permission for a double-storey extension, offering the exciting potential to convert the home into a spacious four-bedroom property, adding significant value and flexibility for future growth.
Externally, the property benefits from a sizable rear garden, providing ample outdoor space, as well as a private driveway to the front. Located close to local amenities, transport links, and popular schools, this home is ideally suited for professionals, couples, or families looking for both immediate comfort and long-term potential.
A must-view property offering space, style, location, and future opportunity.
- Two bedroom semi detached with study
- Sizable rear garden
- Driveway
- Popular location
- Walking distance to station
- Chain free
- Ground foor W/C
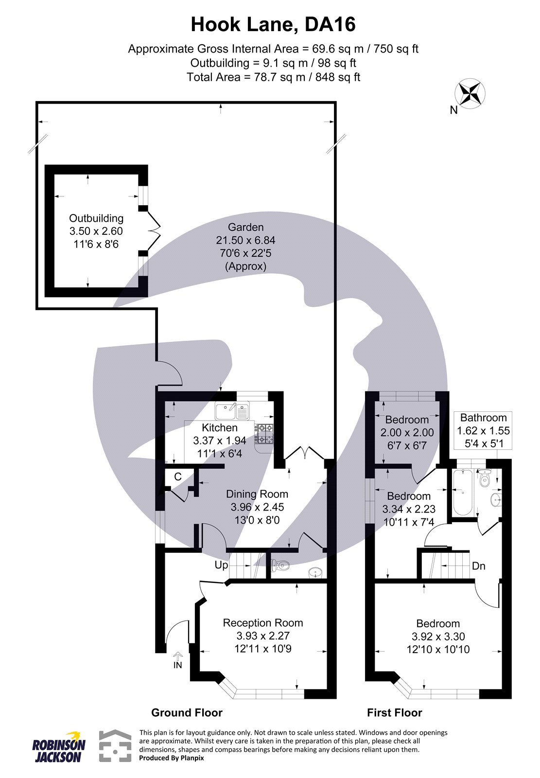
Rooms
Entrance Hall:Double glazed door to front and wood style laminate flooring.
Ground Floor WC:Fitted with a two piece suite comprising of vanity wash hand basin and low level wc.
Lounge: 3.94m x 3.28mDouble glazed bay window to front and wood style laminate flooring.
Dining Room: 3.96m x 2.44mWood style laminate flooring, double glazed window to side and double glazed French doors to rear. Opening to kitchen.
Kitchen: 3.38m x 1.93mFitted with a range of wall and base units with contrasting work surfaces. Integrated oven, hob and filter hood. Localised tiled walls, tiled flooring and double glazed window to rear.
Landing:Wood style laminate flooring.
Bedroom 1: 3.9m x 3.3mDouble glazed bay window to front and wood style laminate flooring.
Bedroom 2: 3.33m x 2.24mDouble glazed window to side and wood style laminate flooring. Door to dressing room/study.
Dressing Room/Study: 2m x 2mDouble glazed window to rear and wood style laminate flooring.
Bathroom:Fitted with a three piece suite comprising of vanity wash hand basin, built in low level wc and panelled bath. Heated towel rail, tiled walls, tiled flooring and double glazed window to rear.
Garden:Mainly laid to lawn with patio area. Large shed.
Parking:Driveway providing off street parking to front.
