Property Description
** GUIDE PRICE £180,000 - £200,000 **
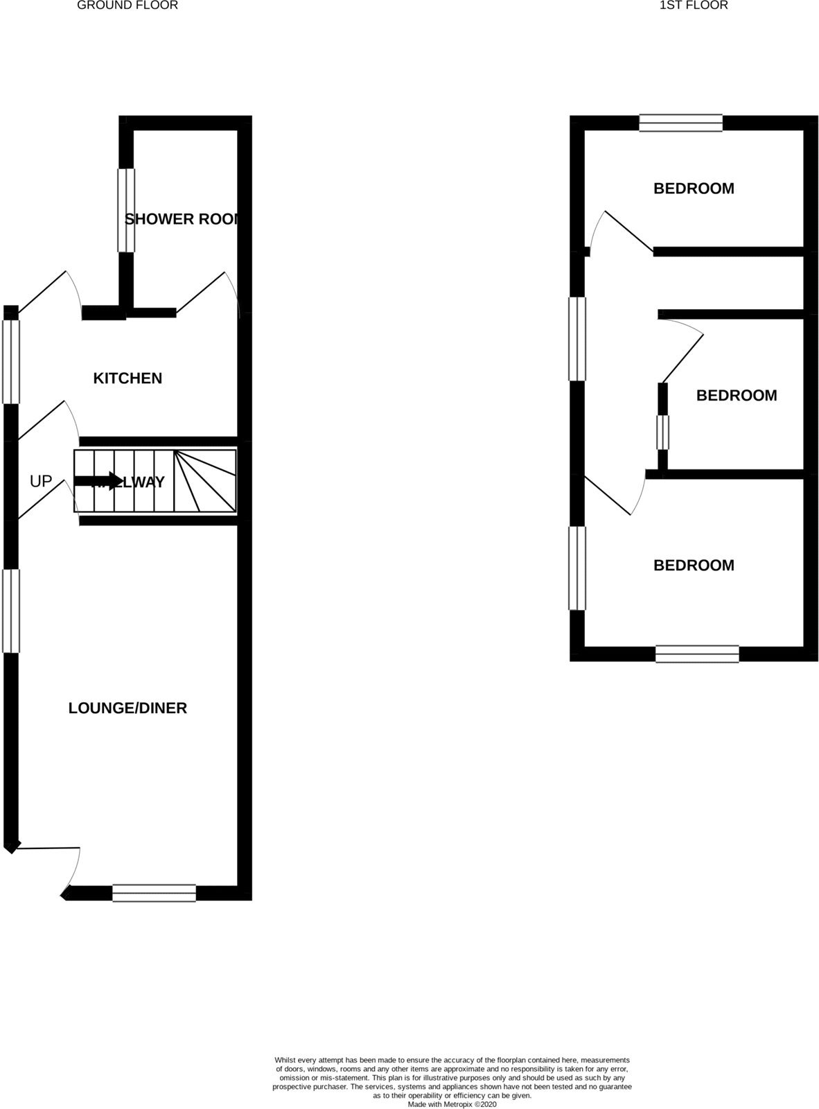
Located on the conveniently located Ingle Road in Chatham, this 3-bedroom terraced property offers a fantastic opportunity for buyers or investors looking for a home with great potential.
The property benefits from three bedrooms, a bathroom, a private rear garden, and on-street parking. This space and layout offers flexibility to suit a variety of needs.
Situated nearby to local amenities, schools, and excellent transport links, including Chatham town centre and train station, this is a well-located home with plenty of scope to add value.
- Move In Ready
- Great for First Time Buyers
- Good Investment Opportunity
- Close to Local Amenities
- Open Plan Living & Diner
- Three Seperate Bedrooms
- Large Main Bedroom
