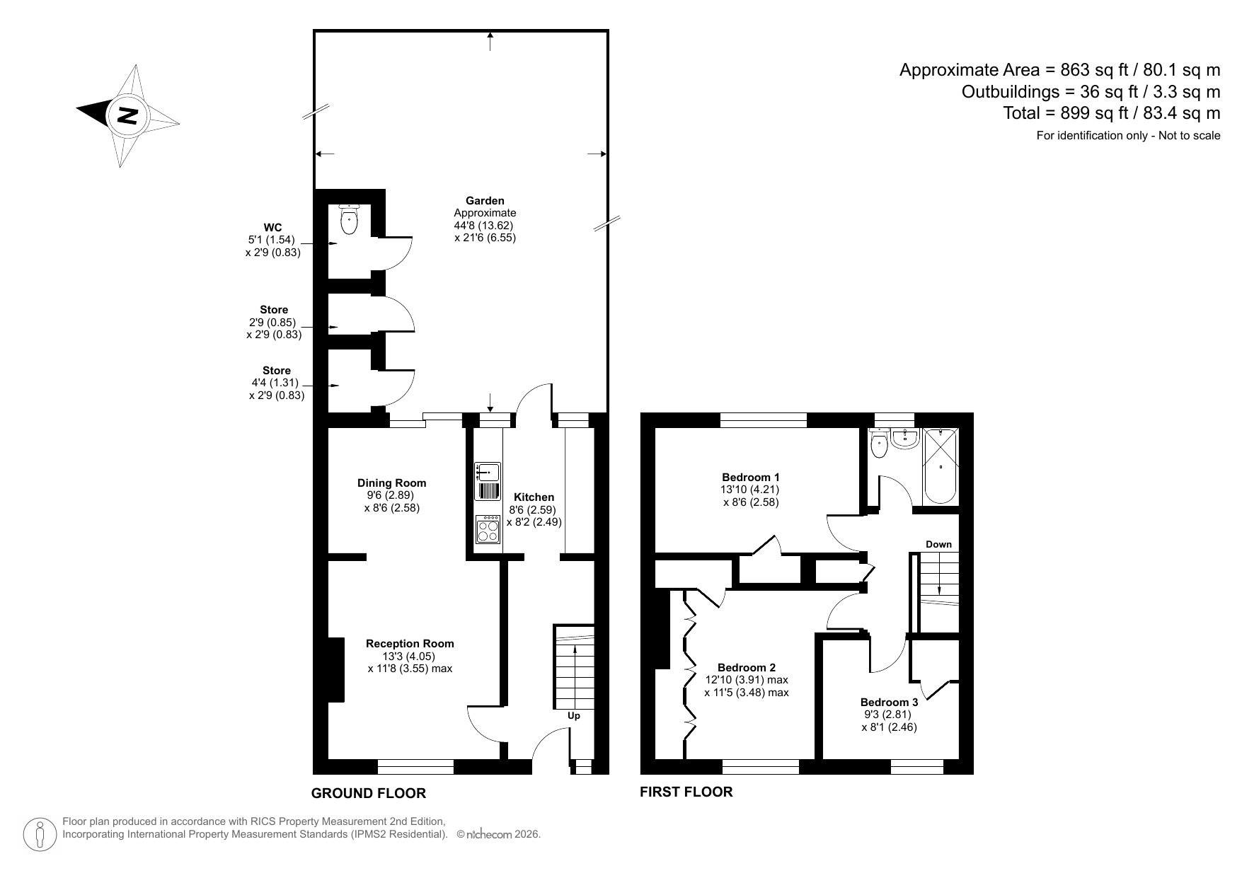
Property Description
*** Guide Price £500,000-£550,000 ***
Spacious and well-presented terraced house being sold with no onward chain.
Benefitting from three good sized bedrooms, through lounge, first floor bathroom and ground floor wc, large rear garden and ample storage.
Well located for Sydenham high street and station and within walking distance of Alexandra recreation ground and the award winning Mayow Park.
- Terraced house
- Total floor area 78sqm
- Three good sized bedrooms
- Through lounge
- First floor bathroom and ground floor wc
- Front and rear garden
- No chain
- Within walking distance of Sydenham high street and station
- Well located for Alexandra recreation ground and the award winning Mayow Park
Rooms
Entrance HallPart opaque double glazed entrance door, radiator, carpet.
Through LoungeDouble glazed window to front, double glazed sliding door to garden, two radiators, carpet, coved ceiling.
KitchenPart glazed wooden door to garden, two windows to rear, range of fitted white high gloss wall and base units with work surface over, one bowl stainless steel sink unit with mixer tap, space for gas cooker, plumbing for washing machine, space for fridge/freezer, tiled splash back, wall mounted boiler, laminate flooring.
LandingCarpet, storage cupboard, access to loft.
Bedroom OneDouble glazed window to rear, radiator, built in wardrobe, carpet.
Bedroom TwoDouble glazed window to front, radiator, full length fitted wardrobes, built in storage cupboard, laminate flooring.
Bedroom ThreeDouble glazed window to front, radiator, built in storage cupboard, laminate flooring.
BathroomOpaque double glazed window to rear, three piece bathroom suite comprising of: panelled bath with mixer tap and shower attachment, pedestal wash hand basin with mixer tap and low level wc, tiled flooring, part tiled walls.
Rear GardenTwo outside storage cupboards, outside wc, patio, mainly laid to lawn, outside water tap.
Front GardenMainly laid to lawn, path.
