Property Description
Bright and airy attractive period terraced house within walking distance of Sydenham station and high street.
Benefitting from two double bedrooms, two reception rooms, re-fitted first floor bathroom, recently refurbished throughout and rear garden.
Well located for the award winning Mayow Park, Alexandra Park and Bell Green shopping centre.
- Terraced house
- Recently refurbished
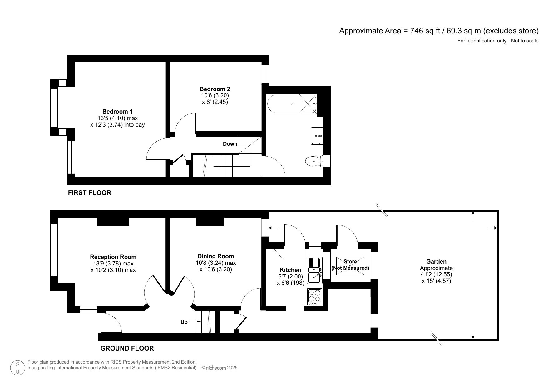
- Total floor area 68sqm
- Two double bedrooms
- Two reception rooms
- Rear garden
- First floor bathroom
- Within walking distance of Sydenham station and high street
- Well located for the award winning Mayow Park and Alexandra Park
Rooms
Entrance HallPart opaque glazed wooden entrance door, herringbone parquet flooring.
LoungeDouble glazed window to front, opaque window to side, radiator, herringbone parquet flooring.
Reception RoomDouble glazed window to rear, radiator, fitted shelving in alcove, herringbone parquet flooring.
Inner LobbyUnderstairs storage cupboard.
KitchenPart double glazed door to garden, double glazed window to side, window to rear, range of fitted wall and base units with work surface over, one and a half bowl stainless steel sink unit with mixer tap, space for cooker, tiled splash back, tiled flooring.
LandingWindow to rear, doors to bedrooms and bathroom, access to boarded loft with power, stripped and painted floorboards.
Bedroom OneDouble glazed bay window to front, double glazed window to front, radiator, fitted wardrobe, fitted shelving in alcove, stripped and painted floorboards.
Bedroom TwoDouble glazed window to rear, radiator, fitted shelving in alcove, stripped and painted floorboards.
BathroomOpaque double glazed window to rear, heated towel rail, three piece bathroom suite comprising of: panelled bath with mixer tap and hand shower, mixer shower over and shower screen, wall mounted wash hand basin with mixer tap and wall mounted vanity unit under, low level wc, part tiled walls, tiled flooring, extractor fan.
Rear GardenMainly gravel with flower border, outside water tap, brick built storage.
